长沙五矿松雅万境销售中心
长沙被称为山水洲城,元禾大千秉承此地源文脉,探索城市人居的文化属性,打造人文与自然交融的生活环境。如同一首裹挟着岁月书香的现代诗,将自然与人文,历史与当代都化诸设计的笔端,勾勒出一座致敬历史、回应当代美好生活的会客厅。
- 项目名称:长沙五矿松雅万境销售中心
- 项目地点:湖南省 长沙市望仙东路与东九路交汇处
- 开发商:五矿地产控股
- 设计参考价:¥2500/㎡
- 销售参考价:¥11000/㎡
- 项目类型:住宅
- 形态:示范区
- 市场定位:改善系
- 建成时间:2022年
- 风格:现代
- 设计面积:1300㎡
- 容积率:1.8
- 发布日期:2023-01-09
- 最近更新:2024-01-05 18:00

长沙被称为山水洲城,元禾大千秉承此地源文脉,探索城市人居的文化属性,打造人文与自然交融的生活环境。如同一首裹挟着岁月书香的现代诗,将自然与人文,历史与当代都化诸设计的笔端,勾勒出一座致敬历史、回应当代美好生活的会客厅。

“松雅·印”作迎客的最高礼遇,线条婉转、飘逸随行,依托起专属于万境松雅的印记符号。


“吾道南来原是廉溪一脉,大江东去无非湘水余波。”
设计师延续水元素,定制打造“湘水清波”,流光溢彩、盈盈摇晃,雾纱幻影之间凝练湖湘的深厚文化底蕴。







继续向前,诚朴会客厅安置于此。此间艺术品与家具皆以东方审美为基准,又用当代手法进行解读,光影流转、诗意流淌、绿植点缀,人文哲思与自然的四时风雅相看两不厌。









随心而入,步入一处可观、可感、可体会的“抱朴书局”,精神世界之美好、心灵请示之浪漫,于此如诗意般呈现,沉溺一片浓厚书香底蕴的美妙境地。
迈着从容的步伐 围坐在阳光下 将精神安放在万物共生的光阴里 心随意动 且安放情怀的诗意








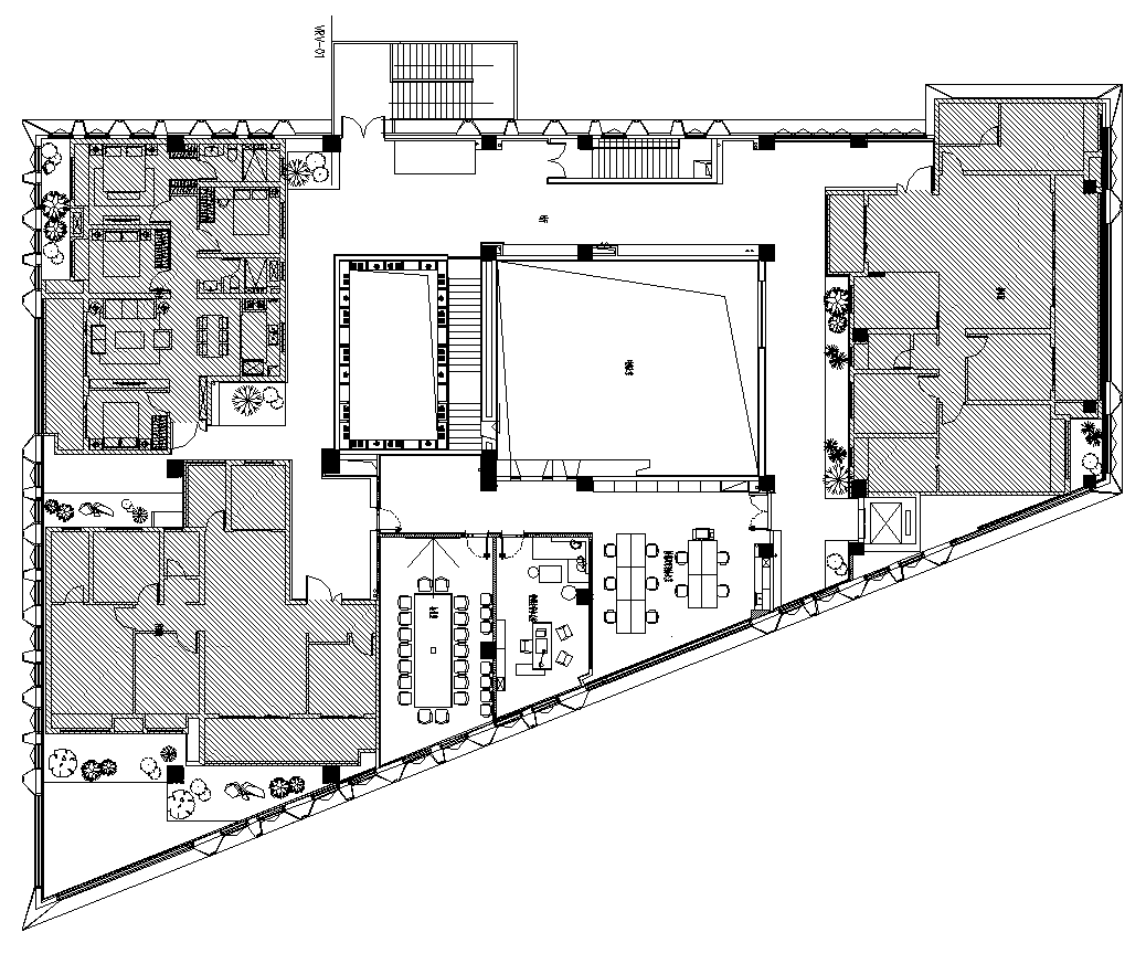
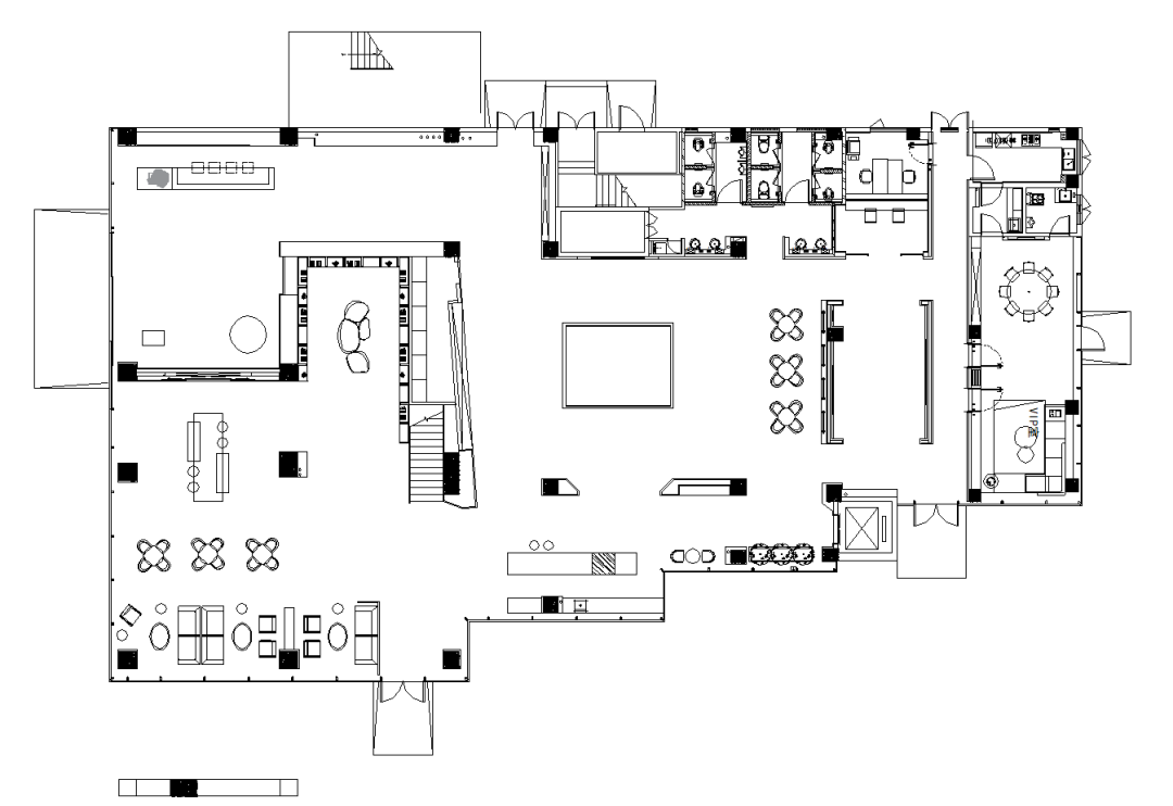
1F平面布置图

项目全名:五矿万境松雅销售中心
项目地址:湖南长沙
软装设计:元禾大千
硬装设计:京冶设计
设计时间:2022.02
完工时间:2022.05
空间面积:1300 ㎡
甲方单位:五矿地产华中区域公司
特别支持:朱红黎 王连发 邓晶晶 贾鑫 潘雯雯
摄影团队:失窃的未来
金盘网APP
金盘网公众号
金盘网小程序





