苏州中旅东山府
在苏州有这样一种洋房生活,从清晨到夜晚,太湖的风有着拂过山间的清爽,在享受的丰饶物产的同时,茶余饭后,沿着太湖边散步休闲近览东山的美景,呼吸清新的鲜氧离子。容积率是衡量居住舒适度的重要指标,但每降低0.1的容积率到底意味着什么?也许是楼间距拓宽了2米,...
服务范围:地产开发-住宅
销售参考价: 13500 元/平方米东、南部地区预售楼盘
入围项目
- 项目名称:苏州中旅东山府
- 项目地点:江苏省 苏州市 吴中区 东山镇定向河...
- 开发商:中旅地产
- 销售参考价:¥13500/㎡
- 项目类型:住宅
- 形态:示范区
- 市场定位:刚需系
- 建成时间:2022年
- 风格:现代
- 占地面积:34400㎡
- 建筑面积: 75049㎡
- 容积率:1.5
- 绿化率:37%
- 发布日期:2023-05-28
- 最近更新:2023-05-31 15:12

售楼处
售楼处风格定位:现代轻奢
现代的审美理念,结合建筑的空间精神,运用艺术的手法,打造一个具有人文情怀的轻奢空间。
艺术造境 · 遇见湖光

一层入口西侧造景区
一个关于东山湖光的体验体系,以故事为核心却不止于故事。所有的设计形态,最终都指向体验,如何以一种更沁人心脾的方式表达,一个层层递进的场景故事,且感性、亲切、立体最为恰当。
在空间设计以及品牌层面,“湖光”的设计理念,以具象的点、线、面以及色彩等形态,将其纳入设计的表达体系。所有表达语言,最终指向以“湖光”为体的故事,以湖光、渔火等元素,刻画空间的文化、情怀、细节、品味。
平面 & 效果解析

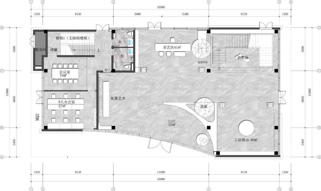
一层平面图
售楼处空间一共两层,一层功能为客户体验,主要有4个功能区域,分别为:门厅、茶艺区、景观楼梯区以及工法展示区。一层设计上运用场景营造的手法,为客户打造一个具有东山文化底蕴的体验式空间。

二层平面图
二层为展示洽谈区域,主要功能区域有水吧区、儿童活动区、沙盘展示区、洽谈区、卫生间。二层的空间是一个开放式的手法,不做过多的阻隔让空间通透更接近自然。
沙盘设置在二层,有效地延长了营销动线,为营销讲解获得更充裕的时间。二层的开放式设计不仅考虑了室内的效果,从展示也兼顾到室外看到二层展示区的视觉效果。

门厅
门厅:圆弧形的设计兼顾了建筑外观的造型,两侧自然延伸到顶的造型,就像展开的拥抱姿势,给人亲切自然的感受。

茶艺区
茶艺区:运用艺术玻璃隔断作为空间的强调,茶桌的边上设置艺术盆景,营造一种松下喝茶的悠然意境。

楼梯
景观楼梯:采用层叠的设计手法,让楼梯更具视觉冲击力及观赏性。水滴形的灯具搭配艺术品营造美妙的艺术意境。

沙盘


洽谈区
沙盘、洽谈区:双弧形的顶面设计源自建筑的弧度,圆弧的沙盘形象比喻成太湖上的渔船,搭配顶面渔网状的灯具,处处渗透着湖光的文化。空间整体米白的色调,点缀湖水的蓝色。明亮轻奢中,透露湖光的自然亲切。
样板间

客厅
家,是交流互动的空间。通过色彩、材质的运用和对比,把空间在视觉上连成一体,打通了物理空间,也拉近了一家人的情感世界。

卧室

书房
在这里,即使独处也充满温情,和谐的节奏维系着空间的平静,一切的装饰都在引导着人在瞬间体味恬静的永恒。
金盘网APP
金盘网公众号
金盘网小程序


