盐城新城琅樾府
设计依循所在地得天独厚的区位优势,在外汲取盐城建筑形制、园林脉络等本土文化,并予以创新形制,筑建于园,筑园造梦。设计主题逻辑以“古香书院”为故事线,载入当地文化元素,将藏书阁、文创展示、绘画阅读、亲子互动、社交聚会、Ai体验等融为一体,打造出富有雅...
服务范围:地产开发-住宅
销售参考价: 15500 元/平方米东、南部地区改善户型空间
入围项目
- 项目名称:盐城新城琅樾府
- 项目地点:江苏省 盐城市 亭湖区亭湖区
- 开发商:新城控股江苏大区
- 销售参考价:¥15500/㎡
- 项目类型:住宅
- 形态:示范区
- 市场定位:改善系
- 建成时间:2022年
- 风格:现代
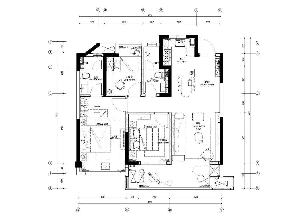
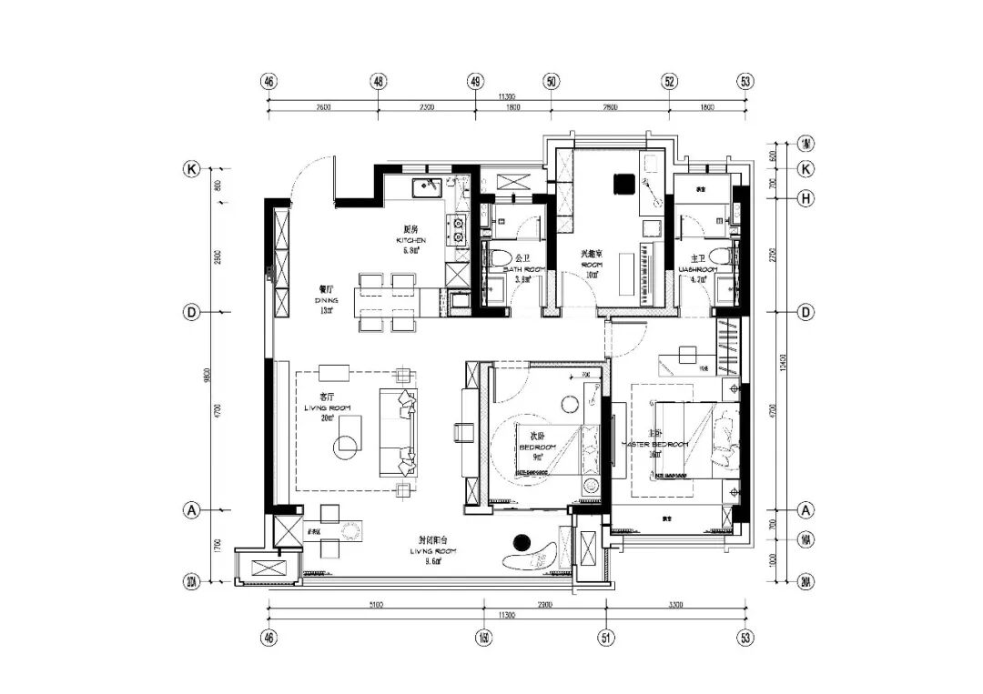
- 主力户型:多层(4-6层) 平层 90-120㎡ 3室 2厅 2卫
- 占地面积:43135㎡
- 建筑面积: 123388㎡
- 容积率:2.2
- 发布日期:2023-05-19
- 最近更新:2023-12-22 13:59

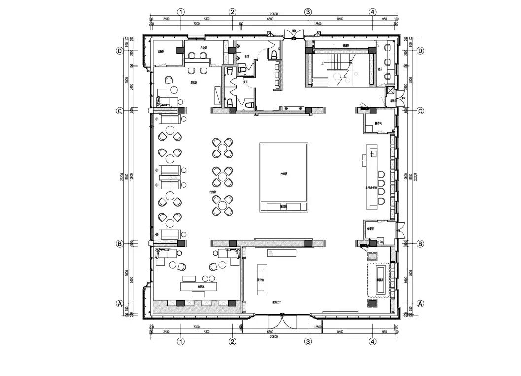
从仪式感极强的入户阶梯步入门厅,天地间的诗意与气韵也在此得到释放。前厅的长幅古画山水映入眼帘,苍翠成荫,画里的古松与盆景古松相映成趣,沉淀着自然的意境与悠然的诗性。整体讲究对称均匀,光与影的叠合,为文人雅士的到来投下高雅的基调。 千年东方智慧,蕴藏于一方庭院。中庭以古松和古画进行雕琢和渲染,在安放心灵的空间里,抒写着人文精髓的诗意家园。 承 层层递进 移步异景 千年东方智慧,蕴藏于一方庭院。中庭以古松和古画进行雕琢和渲染,在安放心灵的空间里,抒写着人文精髓的诗意家园。 转 由外及内 意境高远 光影流转,意境悠远且富有诗意,犹如置身于山水之间,徘徊于自然意境之中。器物朴木,与整体空间气质相互呼应,凸显出雅致的情调。 光与物的交汇,在空间内洒下哲人的深思。立于窗前,闲看庭前花开花落,显现文人的旨趣和格调。 合 宅中有园 园中有屋 拾级而上,藏书阁既是一场视觉盛宴也是一场文化之旅。闲暇品香,物外高隐;读书观松,闲情逸趣。 开放式的儿童阅读空间联动藏书阁的主题,错落有致的书柜缔造出空间的自由动线,质朴温润又不乏跳脱的色彩。坐在其中,或赏玩山川之画作,麒麟之工艺品,也可开展儿童阅读分享会,自小便立志高远,书山有径。 01 120户型 典雅馥郁 120户型为新中式风格,整体色调清雅且极富格调,中式语境结合当地人文底蕴,尊贵雅致。色彩与材质的精心拿捏,将东方人文的精粹、现代艺术的意蕴挥洒自如,构建出一个宁静致远的东方居住场所。 合理的功能规划使客厅空间更加宽敞,双功能客厅承载着多维场景的打造,阳台茶桌尽显诗意人生,意蕴悠长。一面宽敞的落地窗,联动室内外的交流互动,搭配简约稳重的中式家具及古韵配饰,共同造就一幅充满诗意与禅意的生活画卷。 开放性的餐厨空间在设计上预留出许多的边柜、立柜,美观而富有层次感,精致而不失功能性。复古工艺感吊灯对应简约白色系桌椅,简单中自有一份高雅之意。 主卧使用套房的设计,空间攥取古韵红色与青色为主韵,中式圆形吊灯凸显优雅禅意的中式美学气质,搭配上一幅山水装饰画,营造出一种诗意情趣的意境。 以音乐为主题的儿童房,墙面的乐谱,吉他艺术品,以及小音箱等等,都意在从小培养孩子的音乐兴趣,整洁而不失错落感。 兴趣室以浅色作为空间色调基底,代入钢琴和留声机,与儿童房互为呼应。地面用胡桃木饰面凸显空间气质与品味,边柜的展示与收纳功能兼备。 02 101户型 现代潮玩 101户型以现代潮玩为主题,点缀多维色彩,应用独特多样的艺术品,将空间的基调置于当下,打造真正属于新消费时代的场景空间,激发人们的居住活力,提供人们可感知的生活场所。 客餐厅一体化的设计,既实现了两空间的职能,又能让活动空间更充足,通透宽敞,横平竖直的线条增强了空间的平衡感和纵深感,搭配带有艺术风格的家居设计,结构简约且富有摩登时尚感,每个细节都恰到好处。 餐厨空间突破以往封闭式的处理,进行直接的交流互动,搭配精奢的灯饰、艺术品,在满足场所功能性之外,更复添了几分摩登质感。 主卧搭配衣帽间,浅白的空间基底,蓝色为辅助色活泼空间,室外飘窗拓展空间深度,内嵌式收纳处理,既显功能更显美观,营造出通透灵动的视觉效果。艺术花朵造型吊灯为空间增加设计感,与波点地毯相印成趣,共同打造出充满生机与活力的室内空间。 次卧以艺术化的呈现表达空间的流行面貌,精心挑选的床品、艺术挂画,着墨于它的艺术品位,彰显轻奢本色。卧室与阳台的接洽,为空间辐射出一方自由的天地,畅通室内外的衔接。 儿童房在和户型主题保持一致的同时,又根据孩子的兴趣爱好打造出专属他们的梦幻小天地,空间色调根据孩子的审美习惯和性格特点进行针对性设计,满足了不同成长阶段的空间需求,守护着最初的童真。 户型图 售楼处1F 售楼处2F 120户型平面图 101户型平面图










































金盘网APP
金盘网公众号
金盘网小程序





