- 项目名称:沈城烤鱼扛把子
- 项目地点:辽宁省 沈阳市 浑南区沈阳青花椒烤鱼...
- 开发商:沈城烤鱼扛把子
- 设计参考价:¥3000/㎡
- 项目类型:商业
- 形态:大区
- 建成时间:2021年
- 风格:现代
- 设计面积:355㎡
- 容积率:3
- 发布日期:2024-04-07
- 最近更新:2024-04-07 10:30
态度演绎蓝调爵士空间
解锁沈城烤鱼扛把子

蓝调演奏时大量蓝调音(Blue Notes)的应用,使得音乐上充满了压抑及不和谐的感觉,这种音乐听起来十分忧郁(Blue),但就是这么一股“反骨”气息,无约束的精神层次,在精神上构建一种全新的生活概念并任其成为新的时尚。
When playing blues, the application of a large number of blue notes makes the music full of depression and disharmony. This kind of music sounds very melancholy (blue), but it is such a "anti bone" atmosphere and unrestricted spiritual level. It constructs a new concept of life in spirit and allows it to become a new fashion.
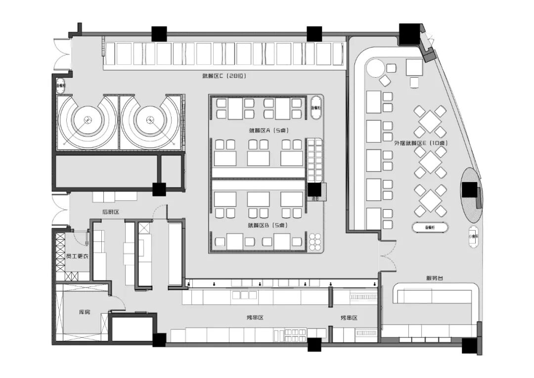
平 面 布 置 图

空 间 爆 炸 分 析 图
这次设计之初,甲方提出营造一种热闹有烟火气的氛围感,并跳脱出以往的传统烤鱼店模式。团队在氛围的考量上摒弃了简朴或五彩缤纷的风格,希望在整个设计中贯穿“蓝调爵士”这种“反骨”的烟火气,打破固化的风格束缚将酒吧氛围最大限度的融入烤鱼这种传统美食的空间中,打造亦可以吸引年轻人向往并深入体验的美食打卡地。
At the beginning of this design, party a proposed to create a lively atmosphere with smoke and fire, and jump out of the previous traditional grilled fish shop model. In terms of atmosphere, the team abandoned the simple or colorful style, hoping to run through the anti bone fireworks of "Blues Jazz" in the whole design, break the fixed style constraints, integrate the bar atmosphere into the traditional food space of grilled fish to the greatest extent, and create a food punch in place that can also attract young people's yearning and in-depth experience.



在深入了解一品鱼悦这个品牌的过程中团队发现这个品牌有很多坚持,比如坚持活鱼烹饪,又好比坚持炭火烤制等,这些增加成本的坚持,也带着一种反骨的气质。团队提出将酒吧蓝调风格的构想时,得到甲方的极力支持。
In the process of further understanding the brand yipinyuyue, the team found that the brand has a lot of persistence, such as sticking to live fish cooking, or sticking to charcoal baking. These insistences on increasing costs also have an anti bone temperament. When the team put forward the idea of changing the blues style of the bar, it received the strong support of Party A.


风格意向敲定之后,团队便在平面上大刀阔斧的规划出外摆区域、吧台区域、明档区域、就餐区域、卡包区域等几个基础功能分区。
室内开放式的格局设计,利用空间之间的穿插、区分,流畅的动线与机能,满足客人多样化的用餐需求。明亮的镜面与金属线条糅合在一起,散发出酒吧的空间延展感。
After the style intention is finalized, the team will plan several basic functional zones on the plane, such as swing out area, bar area, open file area, dining area, card bag area and so on.
The indoor open pattern design makes use of the interspersion and distinction between spaces, and the smooth moving line and function to meet the diversified dining needs of guests. The bright mirror and metal lines blend together to exude the sense of space extension of the bar.
少量的卡座和包围式散座,营造快时尚的体验式场景。同时,精巧的装置造型设计,对人流动线形成有效分割,增加了客人的流动频率,强化了人与人、人与空间的联系,赋予空间更浓郁的人情味。
A small number of card seats and surrounded scattered seats create a fast and fashionable experience scene. At the same time, the exquisite device modeling design forms an effective division of the flow line of people, increases the flow frequency of guests, strengthens the relationship between people, people and space, and endows the space with a stronger human flavor.


现代人对餐厅的诉求除美食本身之外,更在乎具有社交属性的场所体验感,兼具对娱乐精神的追求。于是团队尝试降低灯光的亮度,创造更多暗夜地带,把视觉的重点留给菜品,给食客创造更多的舒适度与自由度,体验一种沉浸式就餐。
整个空间运用了很多弧形和霓虹灯的元素,弧形让整体空间柔和起来,勾勒出鱼与水的动态关系,像跃动的鱼,又如翻滚的浪,更像是起伏在五线谱中的音符,它可以是热闹,可以是静谧,也可以是在俏皮的霓虹灯下的彼此那些充满烟火气的日常。


蓝调精神指自由,注重自我情感的表达,兼具即兴和原创两个特性。没有固定的模式与既定表达。就像团队这次为一品鱼悦的设计理念,它会是不一样的烟火气,带着态度的空间表达。
In addition to the food itself, modern people care more about the sense of place experience with social attributes and the pursuit of entertainment spirit. So the team tried to reduce the brightness of the lights, create more dark areas, leave the visual focus to the dishes, create more comfort and freedom for diners, and experience an immersive dining.
The whole space uses a lot of arc and neon elements. The arc softens the overall space and outlines the dynamic relationship between fish and water, such as jumping fish, rolling waves, and more like the notes in the staff. It can be lively, quiet, or smoke filled daily life under the playful neon lights.
Blues spirit refers to freedom and pays attention to the expression of self emotion. It has two characteristics: improvisation and originality. There is no fixed pattern and established expression. Just like the team's design concept of yipinyuyue this time, it will be a different fireworks and spatial expression with attitude.
金盘网APP
金盘网公众号
金盘网小程序


