惠州-gogoland人宠空间
gogoland位于惠州野岛文化社区,这里饱含历史感的建筑环境与宜人的公共空间,其独特的地理位置对品牌创立具有决定性意义。Informal异规设计通过设计将人宠陪伴与天然环境紧密相连,创造一间以宠物乐园为主题的自然社交空间。
- 项目名称:惠州-gogoland人宠空间
- 项目地点:广东省 惠州市GOGO LAND(野...
- 开发商:gogoland人宠空间
- 设计参考价:¥100/㎡
- 项目类型:商业
- 形态:大区
- 建成时间:2023年
- 风格:现代
- 设计面积:300㎡
- 容积率:3
- 发布日期:2024-04-08
- 最近更新:2024-04-08 10:12

随时随地,自然而然。
Go anywhere,Go anytime。
gogoland位于惠州野岛文化社区,这里饱含历史感的建筑环境与宜人的公共空间,其独特的地理位置对品牌创立具有决定性意义。Informal异规设计通过设计将人宠陪伴与天然环境紧密相连,创造一间以宠物乐园为主题的自然社交空间。
Located in the Wild Island Community of Huizhou, gogoland is a pet-friendly public social space brimming with a sense of history brought by the architecture and an inviting vibe. Its unique location in the neighborhood has played a crucial role in establishing the brand. Through thoughtful design approaches, Informal Design has integrated human-pet bonding with the surrounding natural environment, resulting in a natural social space themed as a pet paradise.

用少量的绿色点缀整体空间氛围,活泼的品牌色像叶子一样散落在空间各个角落。从进入空间的那一抹绿色开始,宠物的爪印就是创作灵感的原点,不规则地呈现在各处,像宠物欢乐奔跑落下的每一爪空间印记。
Slight green adornments are adopted to enhance the overall ambiance of the space, echoing the vibrant brand colors scattered throughout like leaves. Starting from the touch of green at the entrance, design elements inspired by pets' paws appear throughout the space at random, symbolizing the footprints left by the joyful running of pets.





而品牌辅助图形圆形则作为空间线索,应用在门把手、防撞条、导视牌、寄养间的换气孔等空间细节上,蔓延始终。
Circle, as a visual symbol of the brand, becomes a design thread that connects the spaces. It is applied in various details such as door handles, corner guards, signs, and air-vent of the boarding house in a coherent way.








原始建筑前身是黄酒厂的员工宿舍楼,建筑周围被老式居民楼环绕。经园区改造后,长期闲置作为电动车临时停放处。在建筑内侧有一块没有被植被覆盖的场地,与周边的苍天大树呼应形成一个巨型的绿色穹顶,创造了几近完美的天然自然环境。设计团队希望将自然引入室内,在建筑和自然之间创造出无边界的体验。
The project is transformed from the previous dormitory building owned by a rice wine factory. It is situated amidst a cluster of old residential buildings. Following the campus' renovation, the building remained vacant for a long time, serving as a temporary parking area for electric scooters. Within the building, there is an uncovered open space, which forms a magnificent green dome together with the surrounding tall trees, providing an almost perfect natural ambiance. The design focuses on introducing natural light into the interior, creating an unbounded experiential space that seamlessly blends nature and architecture.



The building walls were demolished to create a connection between the corridor on the southwest and the courtyard on the northeast, resulting in a complete outdoor garden. The core functional rooms are set back to create a corridor that expands from the inside to the outside. By extending the ground outward, the interior space is seamlessly integrated with nature, expanding the overall building volume spontaneously.





By utilizing the gentle slope of the entrance ramp and the varying perspectives offered by the building's facade, the sight line transitions smoothly from a higher vantage point to a lower one, from a narrower view to a wider one, and from a closer distance to a farther one. This deliberate design creates a sense of ritual before entering the space, while also fostering a close connection with the surrounding neighborhoods.

The light and shadow fill the interior gently over time, creating a sense of comfort and warmth in this community space. The overhanging structure on the street-facing side extends outward, forming a semi-outdoor area that seamlessly blends with the sloping street. The inward extension of the overhang, along with the presence of bare beams and pillars, adds a welcoming outdoor ambiance to the interior.

The entrance is strategically set back to form a U-shaped foyer, which creates an iconic identity and a buffer between the entrance and the ramp. The pet social space is arranged right in front of the entrance, while the pet service area is placed on the left. To accommodate various spatial functions and the opening time, the design team has incorporated three doors around the right pillar. These doors can be opened in different combinations to cater to different operational needs, as well as the needs of pets and guests at any given time.




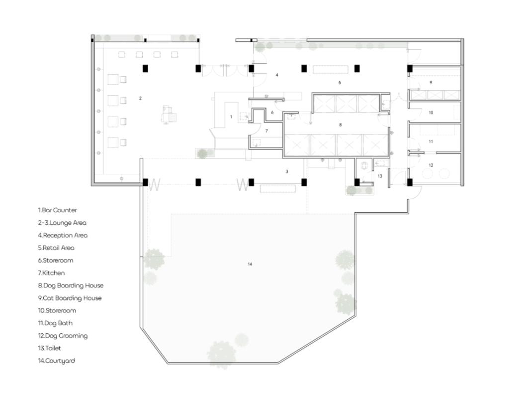
将所有功能间打造成两个长方形盒子,内外连贯的独立盒子不仅包容了吧台、后厨、储物间、宠物酒店,还集合了猫咪洗护美容间、狗狗洗护间、狗狗美容间、宠物布草间。 All functional rooms are housed within two rectangular boxes. The independent boxes, which are connected to both the interior and exterior, contain a bar counter, a kitchen, a storeroom, and a pet hotel. Additionally, the boxes integrate a cat grooming room, a dog grooming room, a dog hairdressing room, and a pet linen room.


The street-facing facade of the box is designed to function as a reception area, creating an open and inclusive community atmosphere. The surrounding area of the box remains in its previous state, maintaining its natural appearance.


The box body incorporates glass partitions to create a complete separation between the pet social space and the pet service space, while still maintaining a visual connection between the two zones. This design allows for a bright, open, and relatively independent overall space, ensuring that every room can enjoy natural light and ventilation and harmoniously integrates with the surrounding architectural and natural environments.



Both ends of the pet social space are enveloped by large glass partitions and glass folding doors. When these doors are fully opened, the adjacent garden merges with the indoor activity area immediately, inviting guests and pets to explore the serene beauty of the garden and enjoy a relaxing and joyful bonding time between humans with pets while basking in the warm sunlight beneath the old trees in the courtyard.


保留原始建筑的表皮肌理,以水泥混凝土地面和临街的灰色水洗石墙面相呼应,让室内温暖的海洋板墙面和干净的白色肌理漆完美糅合。这些材料的巧妙选用不太容易被人发现,仿佛是生长于老房子之上,坐落于植被之中,被阳光包裹着。 The existing architectural skin was preserved, complemented by the cement concrete floor and the gray pebbledash wall facing the street. The interior features a harmonious blend between the warm marine plywood wall veneers and pure white textured paint. These skillfully selected materials seem to growing from the old house, nestled among greenery and wrapped in sunlight.




The natural weathering of the materials over time enhances the building texture, restoring the past appearance of the place in a harmonious manner. The building materials are presented in an authentic way, creating an elegant and simplistic ambiance.





空间上的家具细节打造为初次来到这里的宠物提供安全感,靠墙的固定座位用灯柱支撑,将座位下方空间留给小狗,安抚其来到陌生空间的情绪状态。而长凳下方的悬空设计,是为了仅可能减少对宠物玩耍的阻碍,提供给宠物停留的足够自由度。
The furniture pieces are specifically designed to create a soothing environment for pets, particularly those who are visiting for the first time. The fixed benches along the wall are supported by lamp stands, while also leaving enough space underneath for puppies to find solace and comfort in unfamiliar surroundings. The space under the benches allows for unobstructed space to play, giving pets the freedom to roam and explore.

所有的活动家具特意增强自重,四条腿的正方形桌子稳定性极强,给予人在空间工作与用餐的安心,桌角还预留了可以栓狗的贴心小配件。
All the movable furniture pieces are meticulously designed to enhance stability. The square tables, supported by four sturdy legs, provide a sense of security for people while they work or dine there. Additionally, the table features considerate small accessories placed at the corners, which can be used for leashing dogs if needed.




The chairs are designed to resemble a cozy den, with the option to attach an acrylic box underneath for temporarily housing cats and dogs. The chairs feature specially designed accessories on the sides including dog leash holders and cup holders. The backrest of the chair is adjustable both forward and backward so that either side can be flexibly used for seating.







项目名称:gogoland
Project informationProject name:gogoland
项目类型:人宠社交空间
Project type: Pet-friendly social space
设计公司:Informal异规设计
Design company: Informal Design
联系邮箱:informaldesign@foxmail.com
Company website: www.informaldesign.cn
设计内容:品牌、视觉、空间、家具
Design scope: branding, VI, space, furniture
空间设计:王盛、林树彬、王杰、陈子龙
Spatial design: Sheng Wang, Shubin Lin, Jie Wang, zilong chen
平面设计:郑晶、刘彦宏、符靖
Graphic design: Jing Zheng, Yanhong Liu, Jing Fu
品牌策划:sumi huang、黄文琪
Brand planning: Sumi Huang, Wenqi Huang
项目设计:2023年7月- 2022年8月
Design time:July - August 2023
完成年份:2023年10月
Completion time:October 2023
项目地址:广东惠州
Project location: Huizhou, Guangdong
建筑面积:300㎡
Area: 300 sqm
施工单位:深圳市钜深建设有限公司
Construction firm: Shenzhen Jushen Construction Co., Ltd.
摄影版权:张超
Ltd.Photography: Chao Zhang
金盘网APP
金盘网公众号
金盘网小程序


