- 项目名称:济南-匠杺社当代艺术馆
- 项目地点:山东省 济南市匠杺社当代艺术馆
- 开发商:匠杺社当代艺术馆
- 设计参考价:¥100/㎡
- 项目类型:商业
- 形态:大区
- 建成时间:2023年
- 风格:现代
- 设计面积:1600㎡
- 容积率:3
- 发布日期:2024-04-08
- 最近更新:2024-04-08 14:01

设计以魔方的空间体系作为设计理念,以“多变·趣味·共融”等关键词展开。

匠杺社,以木为作,不止于此。起于木,精于木。
01ART木 艺术
对于匠杺社这一空间来说,空间既是木头的世界,更是创造者主体气质和内核的对外彰显。对商业的助力,和品牌文化的双向赋能,被设计师锚定为更具艺术化的写意语境。



魔方与几何争奇斗艳,色彩与材质各展其才,犹如蒙德里安格子的抽象艺术隐喻。



02ARTISTIC木 变量


15米的挑空空间,在行走的动线上形成前后对比,空间的体量悬殊感立现。





木的生命力,经过匠心与艺术的点化,走向了新的生长。



03
COMMUNION
木 共融




木作的形态不着痕迹隐于空间,承担着使用功能,内化为空间的自然装饰,演变为当下的生活方式。



04
COMPLEX木 情绪
自阶梯而上到达的办公和休闲区域,虽更多倾向于木的背后故事,却在艺术性上保持着一以贯之的整体性。


05
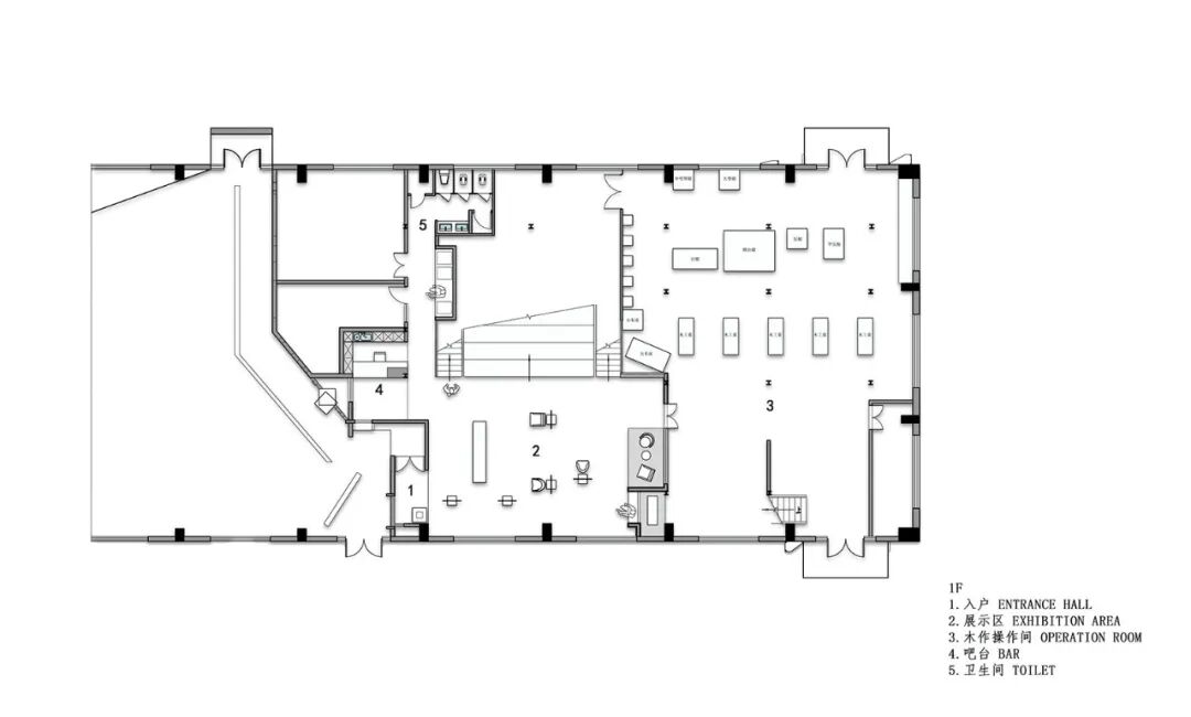
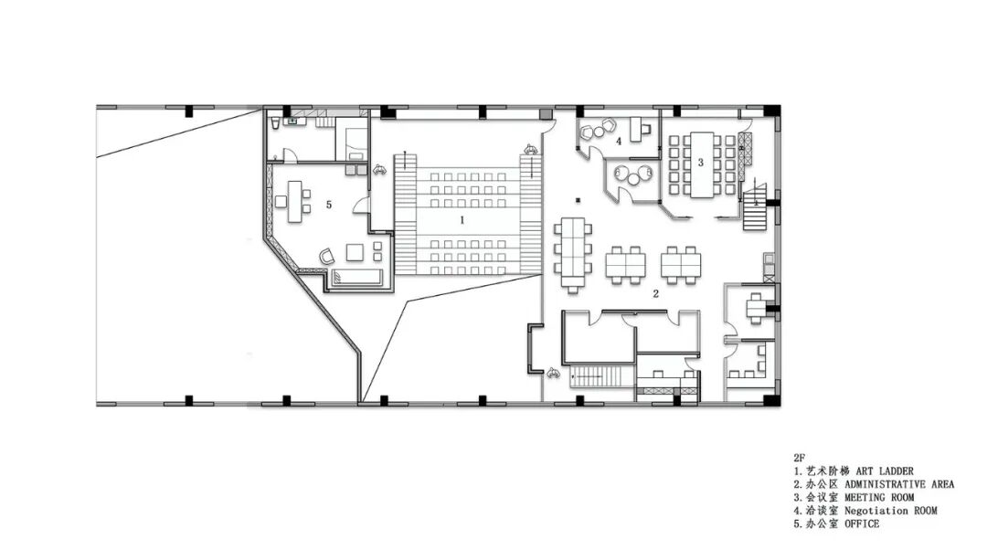
ANALYSIS DIAGRAM分析图



INFO
- 项目名称 -
匠杺社当代艺术馆
- 设计机构 -
牟恩室内设计
- 设计总监 -
牟冬
- 设计团队 -
朱本宝 史健祥
房帅 刘茹荟
- 项目面积 -
1600㎡
- 项目地址 -
山东 济南
金盘网APP
金盘网公众号
金盘网小程序


