项目位于云南省昆明市官渡区昆明市官渡区世纪城商圈广福路与金源大道交汇处,改造前场地为卡丁车跑道,废弃已久,店铺所在层公共活动场地稀缺。业主希望提升该区域运动品质,为该商圈周边的儿童提供一处可以满足日常运动和儿童综合素养培训的场所,同时也满足该品牌会员在等待孩子运动时充分放松,提供专属健身场地,品牌设计提升的目的是让客户学习的同时享受运动,扩展运动品牌的多样性。

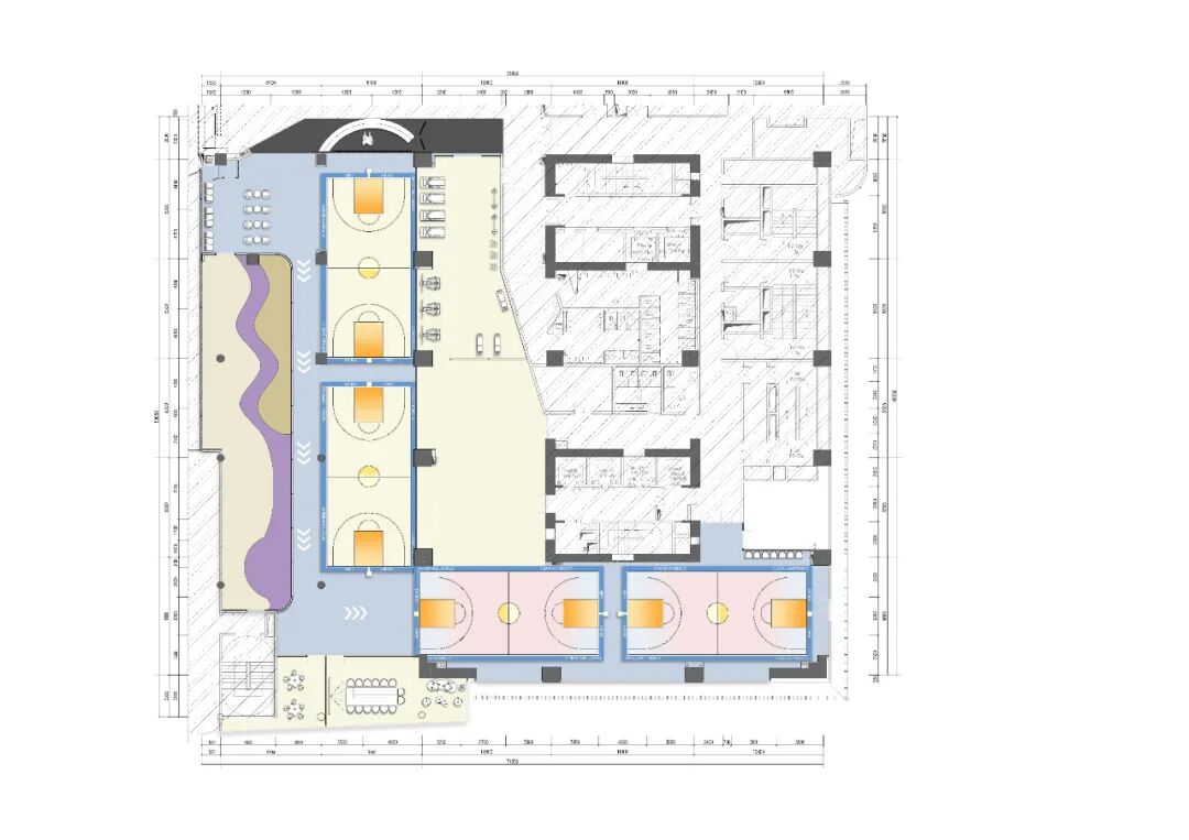
该场地以创造一座让儿童身心皆能自由发展的运动游乐场为目标,探寻跨越篮球场固有形式的可能性,在保持场地组成的同时,让人们在运动中改变对颜色的认知。设计师对室内以及地面标识进行了创意彩色设计,在鲜艳色彩的环绕下,可以激发孩子们更为丰富的情感和想象空间。元素体育的彩色海洋,由四块篮球场,两个少儿体适能区域,一个健身中心构成,除此之外也包含贵宾室、儿童休息区、更衣室等辅助功能空间。其中四块长30米宽17米的标准篮球场,可提供正规篮球比赛与休闲活动;一块长24米、宽17米的健身房,虽然面积不大,但足以为儿童提供健身培训、力量训练等需求。


室内采用了多种颜色,主要为明快轻松的黄色系为主,一下子就抓住孩子们的目光,设计力求打造出“彩色世界—活力海洋”的氛围,致力于营造一个体育、休闲、交流甚至放松聚会于一体的最具活力凝结力的焦点。黑暗的混凝土重新获得生命,有了色彩的加入,这是一个全新的从无到有的新世界。

除了考虑篮球比赛所需的固有场地划分,将色彩和没有界限的渐变植入其中,带给人自由的感受。设计师将运动相关的事物作为颜色选择的出发点,从篮球场上进行色彩采样,并加入一些变化,创造出最终的渐变效果。流动的曲线形成了一种充满音乐感的节奏,激发人们的活力,将原本有限的空间无限放大。

立面上由4种颜色组成丰富的彩色渐变世界,包含愉悦粉向深海蓝的渐变,活力橙向明亮黄的渐变,明黄色主要覆盖了整个室内空间吊顶。其中墙面设计中也包含1.5m高的软包,保护孩子们的安全,为孩子们提供温柔呵护。部分墙面由玻璃分隔空间,给人以开放感的同时与外界保持距离,温柔地从视觉上对儿童进行保护。


所有的自由开放的家长休息区、儿童开放游乐区、休息更衣储物区一一展开,通过吊顶的变化、灯具的点缀,实现区域的限定与功能特点的呈现,在枯燥的走道空间上创造丰富的活动出发点。在细节设计中也尤其注意,整个地面后都设置了引导性的标识,导向清晰明确,生动的展开,引导孩子逐步进入温暖活泼的彩色运动世界。▼室内采用黄色,配合彩色橡木地板、软包等,创造一个有层次的空间彩色设计致力于让人一进入元素体育,就能感受到扑面而来的时尚活力的气息,设计在入口前台营造时,选用银色金属漆面和灯光的强烈视觉搭配突出力量感与线条感。背景墙和前台融入了细腻的篮球形态,在一目了然的篮球打造出整体感,而吊顶、周边墙面以新型材料聚碳酸酯板和灯带配以明黄色突出元素体育logo,通过有纵深感、有层次的图底关系,充分展现出一个体育文化氛围浓厚的公共空间。球形元素的亚克力灯与包在前台上的线性灯柱,结合黄色也起到了加强空间线性的作用,旨在在视觉与材质上将不同运动空间衔接在一起。

按秩序排列的灯条形成了一种充满音乐感的节奏,结合球形灯如飘浮的音符,延伸至两侧,激发人们的活力,给人留下难忘的印象。整体视觉色彩中,黄蓝色与粉蓝色搭配带来强烈视觉冲击力,搭配中和了粉色的稚嫩感,凸显空间的活力,平衡了黄色带来的靓丽感,创造出极致彩色的欢乐空间观感。

待在色彩丰富的环境中可以让儿童更为敏感,并且有利于培养每个孩子的个性。处处融入人性化地关怀与个性化的需求设计,相信这里也将成为人们最爱去的运动场馆之一。被色彩包围,生活在色彩中,接触不同的色彩,元素体育希望以这样的方式丰富儿童的情感,让他们健康成长每一天。

入口所用灯具与门头材料均为定制亚克力,以聚碳酸酯板包覆门头,亚克力球形灯点缀其中,形成秩序感的空间。在有限的造价下,结合黄色墙面,来围合一个基础单元空间。丰富的模数在不同的位置有特殊的搭接处理,目的是让单调的围护结构变的丰富而有亲和力。把材料的质感使用到极致,围合一个虚实对比清晰,通透又坚固耐用的空间。

升级后的元素体育3.0系列,立面设计强调被色彩包裹的空间体验与视觉体验,相互两个方面形成互补,用灯光加强立面的黄色与粉色渐变,增强视觉丰富性,让空间体量变得通透完整。




公司网站:parallect-design.com联系邮箱: info@parallect-design.com项目地址:云南省昆明市官渡区世纪城商圈广福路与金源大道交汇处