深圳-爱树慢可可里民宿
项目位于深圳大鹏半岛的较场尾,北临古城大鹏所城、东山寺等历史古迹,南邻龙岐湾,与七娘山隔水相望。作为大鹏半岛唯一有海岸线的村庄,这个昔日默默无闻的关外小渔村,自2007年前后,一批热爱水上运动和休闲度假的现代都市人于此租赁村居民房,并以其自发形成最早期...
- 项目名称:深圳-爱树慢可可里民宿
- 项目地点:广东省 深圳市爱树慢可可里
- 开发商:爱树慢可可里民宿
- 设计参考价:¥100/㎡
- 项目类型:商业
- 形态:示范区
- 建成时间:2022年
- 风格:现代
- 占地面积:280㎡
- 建筑面积: 415㎡
- 设计面积:415㎡
- 容积率:3
- 发布日期:2024-04-08
- 最近更新:2024-04-09 10:02



项目背景

▲村落不同时期的演变
随着建设的蓬勃发展,村落呈现出一种荒蛮生机的同时,各家各户对于空间的争夺也带来了一些问题:阳光,空气,隐私等权利被侵蚀;公共空间的占据也使村落逐步失去一种空间的松弛度,村落动线被完全挤压到内街及海滩两条平行线上,村落内部拥挤不堪,逐渐变得无趣。
这也正是经济产业模式单一带来的物理空间层面无趣的结果。在(资本)的挤压下,村落逐渐失去了真正意义上的公共空间——人们停留休憩,交流互动的多元空间。
同时,在整个高速建设的过程中,建筑风貌没有有效指引,建筑边界及高度的肆意扩建,使得整个村落呈现出凌乱无序的状态。当我们第一次来到“中心街道”的时候,完全无法感受到海洋的气息,只有各式的招牌及慵懒的人群可以让你感受到一丝度假气息。在这样的环境下,我们选择了一种克制而又“张扬”的方式介入。

▲ 村落现状

空间策略
以退为进,重建秩序
1. 圆拱阵列围墙,街巷空间的秩序重建
项目贴临于一条繁杂的老街边上,除了临街视野相对开阔,其余三边均与邻居房子紧挨着。所有建筑都占满了红线边界,以一种剑拔弩张的抢夺姿态和呆板的建筑表情回应周边。建筑之间的缝隙成了无趣的、消极的窄巷。

▲轴测爆炸图
设计的初期,我们置入新的圆拱墙体,形成几何序列清晰的沿街界面;而墙上的洞口,使视线的通透和人们的互动行为得以发生;有序而自由的街巷空间秩界面得以建立。而在内部,我们以九宫格对本已局促的场地进行细分,将四个角部设计为不同特质的庭院空间,以其来作为建筑和周边的空间过渡。这种既充分占据又自由开放的暧昧关系,给周边邻里带来更为戏剧性的空间张力。

▲ 屹立在海边小镇的红色方体
2. 体量角部切割,立体空间的透气缝隙
整体建筑体量也顺应首层的九宫格关系,对建筑的四个角位进行切割,让自身体量得到很大的弱化,和周围建筑之间留出更多的缓冲空间,把立体空间部分让渡给了村落,形成了建筑之间的透气缝隙;而我们建筑本身,也在这个过程中自然形成了更为适宜的形体尺度。
以退为近,在一系列的退让动作中,逐步建立自身建筑的空间关系和尺度感。

▲ 体块生成

▲ 村落里的红房子

外部形式
以永恒的几何回应原初的自然
建筑以简洁的方型体量和弧形洞口,塑造隽永的形体,在繁杂的外部环境中营造一种理性克制的诗意。白色体块是垂直交通和书架空间相结合的公共空间部分,布置在面向街道的一侧,覆以轻盈朦胧、半透明的穿孔铝板,是内部空间与街区形成互动关系。
而红色体块的设计则取自海岸礁石,在杂乱的环境中塑造一个强有力的几何雕塑形体,在相对内向的空间中,用方向各异的几何圆拱窗将城市景观引入,在混乱中梳理秩序。红色敦实的红色体块和半虚的白色盒子构成了建筑的实与虚,举重若轻之间凸显戏剧张力。


▲ 沿街建筑立面,夜景与日景

▲ 虚实对比

▲ 在街巷中的礁石书馆
转角圆弧形切角营造出清晰的入口空间意向,同时置入景观廊,真正的入口退后在景观廊内,使室内空间与街道有了柔和的过渡,在紧张局促的空间关系中,依然能梳理出丰富的空间层次。


▲ 入口门洞

▲ 内院一角

内部空间
以自然之形塑造内部空间,
营造超脱于日常的自然诗意
三根柱子孤立的落在首层公区中,模拟自然礁石与岩洞空间,让首层形成一个有机的、粗犷的的空间。圆形书架系统的融入进一步弱化了柱子的存在,整个公共空间变得更为自由而流动。

▲ 剖透视图

▲ 一楼公区岩洞空间

▲ 地面弧形的海浪线
地面肌理隐喻了空间的变化。垂直书梯空间被无数的方格子划分着,或实或虚的墙体书格,其间有“窗”作为联系,有“门”作为向外打开的通口,行进的过程感受光影时间的变化,在向上行进过程中有如万花筒般的空间体验。

▲方形回廊书梯

▲ 垂直书屋
屋顶流动的、起伏的曲线女儿墙,是对远山与海的呼应。

▲ 流动的屋面曲线

▲ 屋面的雕塑感围墙
在十字方体上,用不同的圆对体块进行雕刻,建筑的几何体量更为清晰。在繁杂的环境中,一种更为理性的态度得以彰显,同时也给内部空间带来了多变的观景视角。

▲ 圆洞之外

▲ 圆洞之内

▲ 多样化的立面处理带来不同的框景效果


▲ 跳跃的拱形门廊

愿景
重塑公共空间的意义
营造超脱于日常的诗意,让度假的意义获得新生。
坐落于镇子里的这栋房子,我们希望它起到的作用不单单是一个民宿的业态,而是重新去诠释公共空间在村落里的意义,有意识地去开发一种能够促进当地质变的空间,以一种更加包容平和的空间状态去拨动过往行人的多维感官,实现人与空间的互动。

▲ 夜晚的礁石书馆
技术图纸
PROJECT INFORMATION

▲ 首层平面图

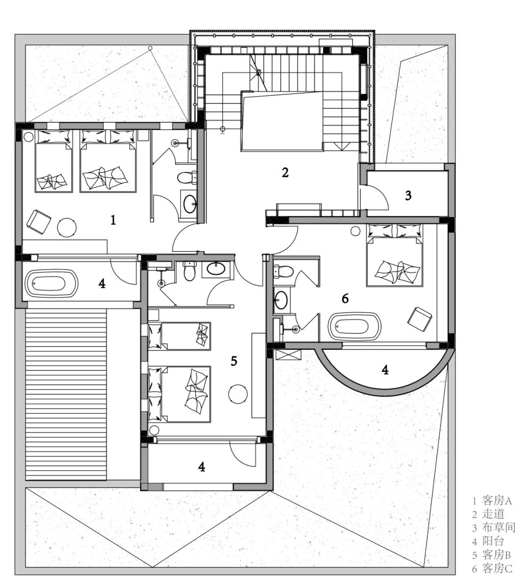
▲ 二三层平面图

▲ 屋顶平面图
项目信息
PROJECT INFORMATION
项目名称丨爱树慢可可里民宿
项目类型丨建筑、室内、景观
项目地址丨广东省深圳市大鹏新区较场尾路
设计团队丨广州城外建筑设计有限公司
主创设计丨陈洁琦 / 林旺铭
项目设计&完成时间丨2020.05-2022
用地面积丨280㎡
建筑面积丨415㎡
摄影版权丨潮声、吴嗣铭
金盘网APP
金盘网公众号
金盘网小程序


