新江湾城 · 首府
真正的诗意栖居,从不是逃离繁华喧嚣,也不是花团锦簇的向外昭示,而是在心中呵护独属于自己的一方桃花源。因此,家无定式,之于居者,既是可以精心雕琢的空间,亦是可以品味的生活哲学。
- 项目名称:新江湾城 · 首府
- 项目地点:上海市 上海市新江湾城 · 首府
- 设计参考价:¥1000/㎡
- 项目类型:私宅
- 建成时间:2023年
- 风格:现代
- 设计面积:500㎡
- 发布日期:2024-04-29
- 最近更新:2024-04-29 15:37

COMPLEX
情节
-
500㎡的空间,对于一家四口来说,是可随性释放自我向往的天资。
整体设计感觉偏老友记,业主的开放度还是比较大的,中意各种元素与颜色之间的穿插,中意一点点小法和复古的调性。

P. 01

中古情结是主人的好品味,吸收了时间流淌过的每一个时代的艺术精华,东方审美的韵,法式浪漫的调,自然极简的轻,精雕细刻的雅,让经典的复古与现代的潮流混搭,成就另一种不落于俗套的审美格调。

P. 03

P. 04

P. 05

P. 06


P. 08

P. 09
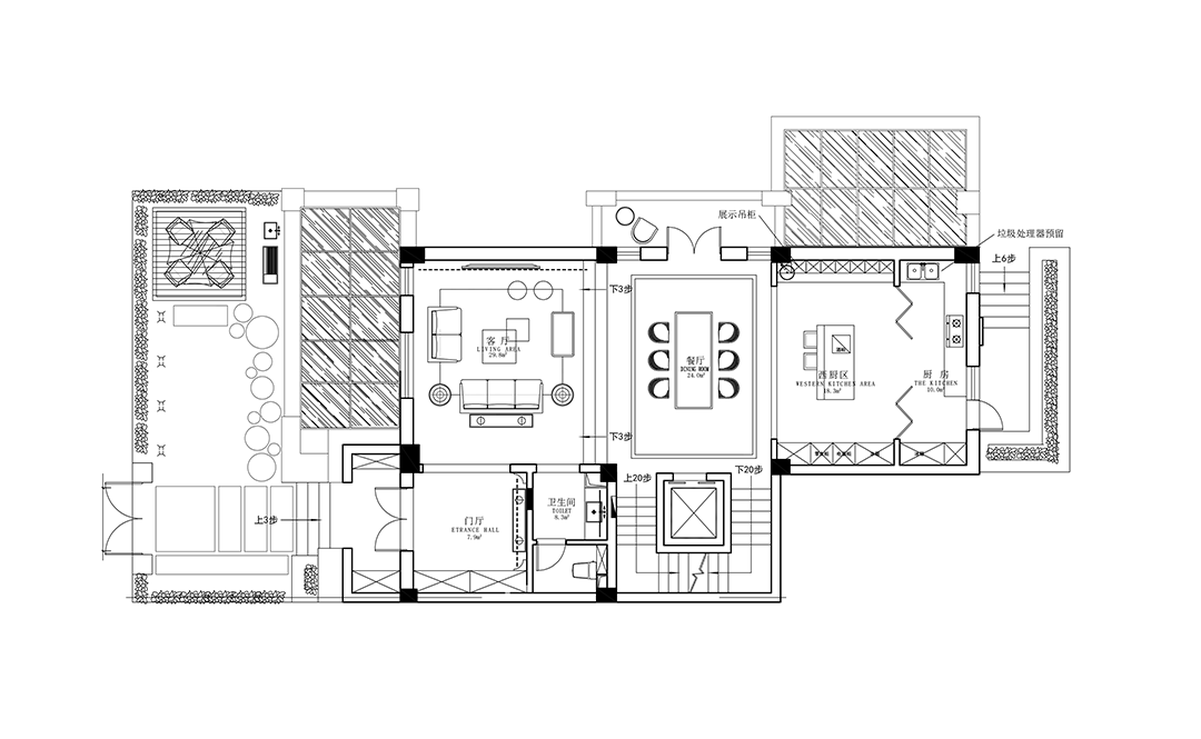
LIVING ROOM
客厅
-
留白消边界
松弛蕴自在
空间的流动,一方面得益于布局上的贯通,一方面仰仗于大面积采光的多向呼应。在核心的功能组件之外,大量的留白,反向聚焦了家庭的动线焦点,亦让家的相处有了更多极具呼吸的通透,功能与精神皆可自由生长。

P. 10

P. 11

P. 12

极具法式优雅与复古浪漫的拱形门,是天然的框景器,家中的每一处流连,移步易境。艺术手法的设计表达,柔化了空间的曲线美,延展着视觉上的统一性,丰富了空间形态,最后彰显了精神上的浪漫主义。


如果说,极简手法下的点线面构造,擅长勾勒连通大境,模糊时间与空间界限的自由场域,那装饰线条和色彩跳跃,则成为客厅节奏调和的元素。
不同色度的浅色系中,高级蓝是点题品位的妙笔,如生活里意外打开的巧克力,随着四时流转的光影变幻,碰撞出未知的惊喜味道。


DINING ROOM
餐厅
-
开放式餐厅自带深意,以生活的便捷展开左右逢源的叙事。一面以集颜值与多功能于一体的岛台,完成与客厅日常的街接,一面直接贯通至厨房,畅达从食材到风味的全过程流动。

P. 18

P. 19

P. 20

P. 21


P. 23

P. 24
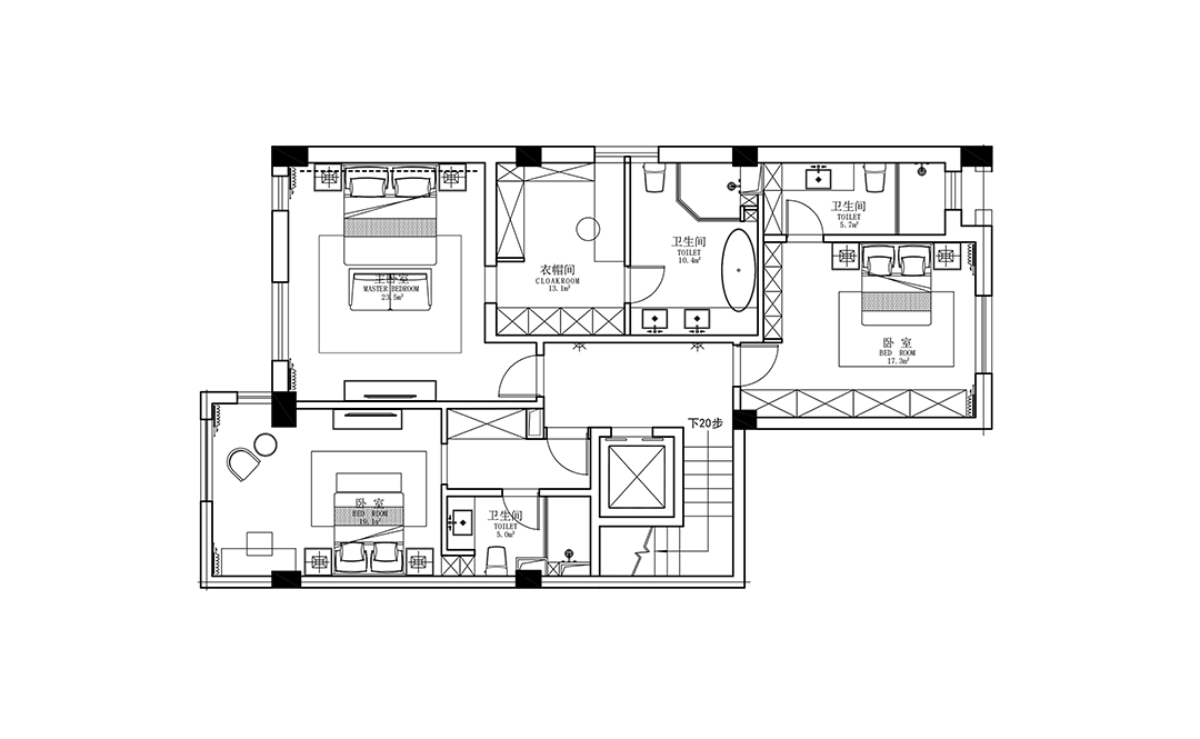
BEDROOM
复古是致敬,亦是创新。在复古情结的启发下,设计重新提取早已被时间印证过的经典元素,熟悉的符号,以现代的笔触,重新去描摹。
设计没有过多的干预卧室空间,留给了静谧的氛国,却又胜在韵脚。

P. 25

P. 26
拱形连接处搭配复古的配色,明晰了功能,奏和出灵动,以材质的品位,以色彩的调和,以细部的精度,共同营造出致敬热爱生活的礼赞。
在这样匠心的铺垫下,毫不费力便燃起了满室的生命力。即使再细碎的生活片段,也从不念慢。

P. 27

P. 28

P. 29

P. 30
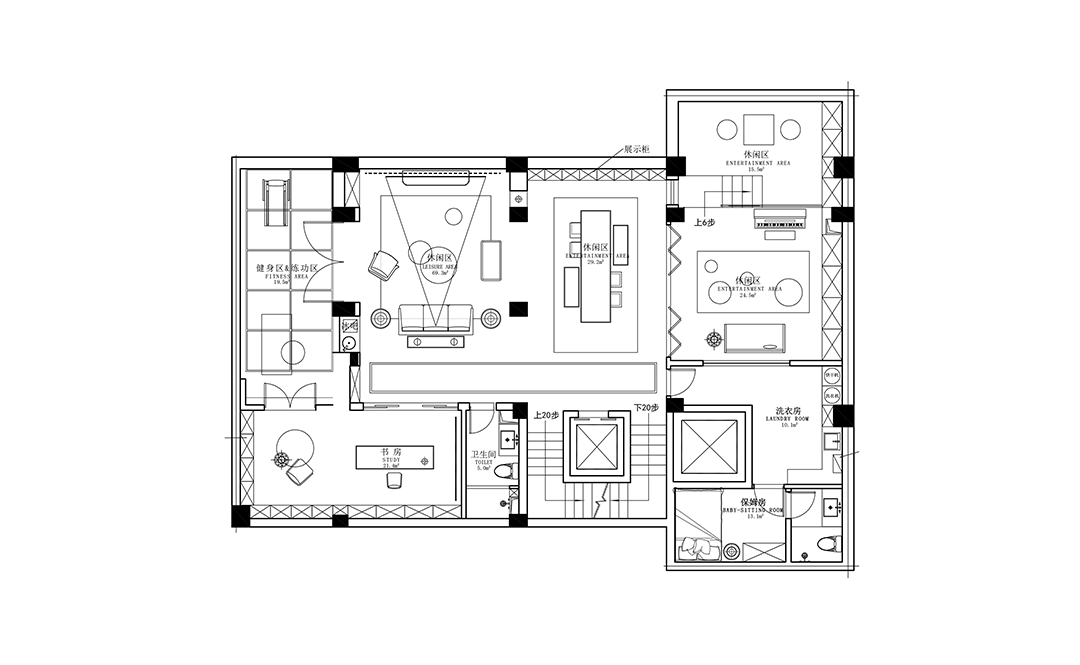
ANALYSIS DIAGRAM
INFO - 项目名称 - 新江湾城 · 首府 - 设计机构 - 麓一设计 - 主案设计 - 胡露 - 项目面积 - 500㎡ - 项目地址 - 中国 上海 - 主要品牌 - Imola意大利瓷砖 KOHLER进口卫浴 Milele 电器、SMEG、 Edra、B&B、Cassina
金盘网APP
金盘网公众号
金盘网小程序





