上海棕榈滩别墅私宅
这是一对中年夫妇用以度假的新居所,在日常功能的需求上并不多,度假属性决定了这处居所浪漫、不寻常的特别。
- 项目名称:上海棕榈滩别墅私宅
- 项目地点:上海市 上海市棕榈滩别墅
- 设计参考价:¥1000/㎡
- 项目类型:私宅
- 建成时间:2023年
- 风格:现代
- 设计面积:450㎡
- 发布日期:2024-05-07
- 最近更新:2024-05-07 15:47


SIN GO DESIGN
现代风 & 案例赏析

面积:450㎡
风格:现代
楼盘:棕榈滩别墅
"设计是一种把想法变成现实的能力。"
"Design is the ability to turn ideas into reality."
这是一对中年夫妇用以度假的新居所,在日常功能的需求上并不多,度假属性决定了这处居所浪漫、不寻常的特别。

整体以现代休闲风格为主,干净简约的灰棕色调搭配黄棕调色调出温柔舒适的居住氛围,大量的玻璃、大理石纹和等材质配以轻奢内敛的优雅格调,于方寸之间营造极致美学,追求设计的同时,也不失惬意的生活气息。


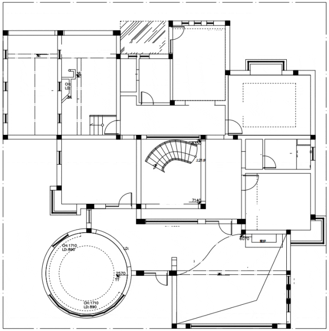
户型分析
空间琐碎、零散,进入室内并无大宅的感觉;
光线较好,但是没有好好的利用;
花园很大、但缺乏与室内的互动;
原始空间结构琐碎并压抑。

改动重点
入户位置进行了移位,让入户形式更具仪式感;
打开全部可拆除的墙体,让整个弧形楼梯成为空间的亮点;
圆形水吧区与圆形餐区配合楼梯的造型;
下沉式的双车库也整改成厨房+酒窖的形式;
二层增设了阳光房来做休闲书吧区域。

一层放弃了将客厅作为焦点的设计,而由原始楼梯改后的旋转楼梯成了整个居所的亮点所在。


玻璃的材质带来通透明净的质感,柔软温润的圆弧形优雅缱绻,水晶灯携明媚的阳光倾斜而下,瞬间点亮寡淡的空间,明媚干净。

旁边空余空间巧设休闲弧形吧台,度假休闲的时日,斟一杯闲暇慢慢品尝。


客厅设在东北向,保留了挑空的设计,大开落窗引光入室,宽阔明亮,围合式的沙发休闲舒适,氛围浪漫惬意。

中西厨收作一处,设在西南角,简约不失实用性。


餐厅则设在东南角落地圆形景观小阳台,环形大面积落地窗引景入室,朝揽清风暮晚霞,品一顿精致美食,享受一整天的阳光、日落与微醺。


二层往上,则是一家人休憩的私密空间,设两个客卧套房和主卧套间。



阳光房家庭休闲厅三面均采用透明的钢化玻璃,尽最大限度让光线入室而来。


清晨的阳光透过宽大的玻璃窗,洒在阳光房内。温暖的光束穿透轻盈的窗帘,投下斑驳的阴影,将空间点缀得如梦如幻。
无论是休闲阅读、享受清晨的咖啡,或是与亲友相聚,此处都是家中的明媚胜地,独特的光影和温暖的空气将这里变成了一处宜人的天堂。


金盘网APP
金盘网公众号
金盘网小程序


