




错动体块形成的宽窄变换折线,勾勒出外环廊丰富的空间层次,环廊层最大出挑达到5米,下部形成宽敞的露台空间,上部构成深远的出挑檐廊。虚实相间错动变化的体块组合成了既硬朗又灵动的叠石状立面形态,宛如中央河畔的太湖石。
感谢 启迪设计集团股份有限公司 对gooood的分享
启迪设计大厦总部办公楼位于苏州工业园区金鸡湖商务区,是启迪设计集团公司成立70周年之际搬入的新总部大楼。项目北侧紧邻园区主轴线上的中央河景观带,南侧、东侧为市政道路,周边多为现代化金融办公大厦。设计的主要目标与研究方向是在与周边建筑呼应、与景观带融合的同时,注入苏州园林文化的意境,创造绿色、健康、智慧的高品质现代化人文建筑。



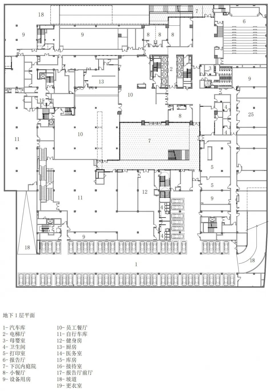
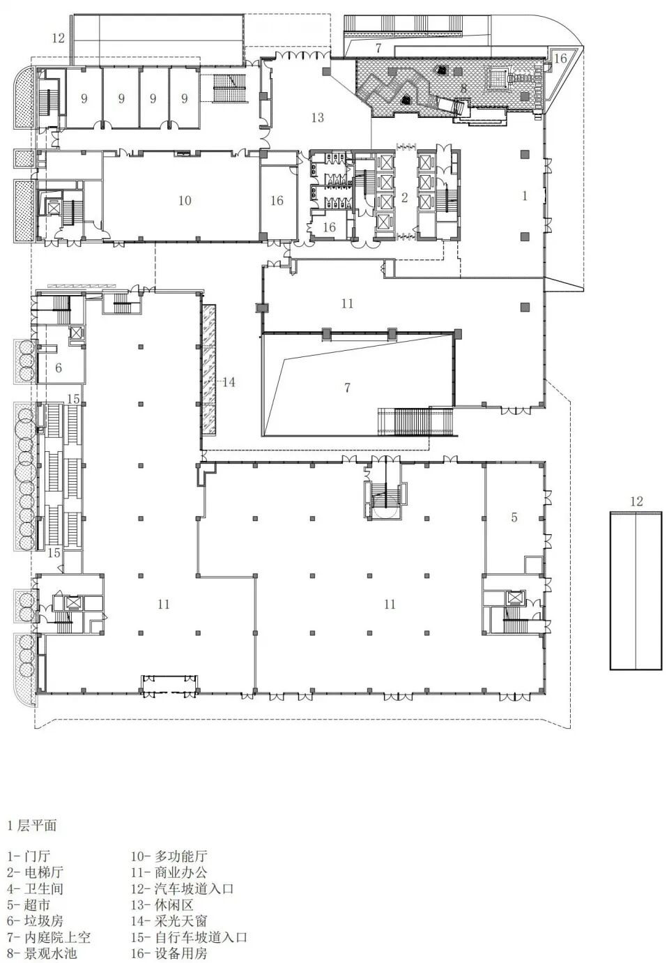
本项目总建筑面积约7.8万平米,地上23层,地下3层,建筑最高高度约118.8米。南侧3层裙房与北侧塔楼之间是一个下沉至地下1层的“之”字型内庭院,宽阔的内庭院为建筑中部带来充足的自然采光与通风。“之”字型内庭院在一层将南部对外的商务区与北侧塔楼办公区分开,使不同功能区的人流得到自然分隔,同时东西贯通的内庭院形成的通风廊道,也加强了内庭院的自然通风效果。



设计从苏州传统民居的院落与游廊中汲取灵感,在建筑体块构成中,设计师将“庭院深深”的平面院落向垂直方向延伸,形成独具特色的7进“垂直院落”,7个“院落体块”在垂直方向上叠加,每一进院落均包含一处花园,1500平米的下沉内庭院、近5000平米的裙房屋顶花园、塔楼上5个面向金鸡湖景的共享中庭,大小院落、花园共同构成了高层建筑中的“立体园林”。每个院落体块之间设有一个“环廊层”,设计师将苏州园林中因地制宜、随形而弯的观景“回廊”元素引入到高层建筑中,形成登高博见、俯瞰远景的空中“环廊”,环廊层可远眺苏州工业园区的“金鸡湖”、“独墅湖”、“阳澄湖”三湖美景,既是供人们呼吸户外空气,极目远眺、休息交流的生态休憩区,又是设备新风、排烟的设置点,风口隐藏于环廊吊顶的穿孔板中,避免了设备百叶对外立面完整性的破坏。




作为中央河景观主轴上的重要建筑,设计师期望建筑的形体更具灵动性,通过对建筑四个角部9°的微旋转,使原本四边形平面转变为拥有12个边界的丰富形态。在塔楼体块单元叠加过程中,每个相邻单元通过镜像形成上下错动,从底层向上仰视,错动的体块仿佛苏州传统街巷层叠的“人”字坡山墙面竖立起来,鳞次栉比组合成了一片独特“街区”,仿佛让人置身于仰视的江南街景之中。错动体块形成的宽窄变换折线,勾勒出外环廊丰富的空间层次,环廊层最大出挑达到5米,下部形成宽敞的露台空间,上部构成深远的出挑檐廊。虚实相间错动变化的体块组合成了既硬朗又灵动的叠石状立面形态,宛如中央河畔的太湖石。

室内公共区域采用了苏式园林化的设计手法,在紧邻中央河景观带的主门厅中引入太湖石、池水、四角亭等园林元素,垂直楼梯与园林曲桥线形融合,形成凌空于水池之上的立体折线,北侧通透的极窄钢框玻璃幕墙系统消隐了建筑边界,使人们在拾阶而上的步移景异中,感受室内外环境之美。

▲ 左图为拙政园小沧浪水院的曲桥路径,右图为门厅中曲折向上的阶梯路径 © 张筠之


在塔楼垂直院落的中庭设计中,设计师将现代元素与苏州园林意境融合,通过垂直吊挂的绿化、木格栅的方亭,仿青苔汀步的地毯等苏式元素营造出室内空间的室外园林感受。




丰富多样的室内、外运动场地满足了高品质办公空间的健康需求,位于塔楼顶部的第7进院落是屋顶运动区,设计师将屋顶设备集中于核心筒顶部,释放出环绕核心筒一周1500平米的运动场地,设置了羽毛球场、乒乓球场、健身平台等运动设施,同时利用建筑形体的收分在挑檐处设置了一圈200米的空中跑道。结合绿建三星清洁能源的要求,设计将屋顶光伏板与运动场地的遮阳、采光需求相结合,采用了17%透空率的双玻组件光伏板,达到建筑光伏一体化的设计。


位于建筑裙房绿化环绕中的空中景观篮球场是备受员工喜爱的室外运动场地,球场北侧墙面是由深绿、浅绿组合而成的双玻组件光伏板,光伏发电量较好的满足了篮球场的夜间照明使用。篮球场周边与景观一体化设计的光导管可以在白天为室内带来日光照明,晚上反射室内光线成为屋顶花园的景观灯,双向反射光导管达到了光线的充分利用。得益于多种绿色节能技术手段的应用及对健康环境的加强,启迪设计大厦获得绿色三星、健康三星、LEED金级的预认证。此外还获得了美国MUSE Design Awards办公楼建筑设计金奖,美国MUSE Design Awards办公空间室内设计金奖,德国ICONIC AWARDS标志性设计奖·创新建筑 —— best of best(至尊奖)等国际奖项。












公司网站:http://www.siad-c.com/结构:戴雅萍、赵宏康、李烽清、潘苏辰、陈磊、丁锐、丛戎机电:吴卫平、庄岳忠、王笑颜、周秀腾、顾宗梁、赵德栋、曹雪平、朱振锋、张广仁景观:毛永青、蒋冬冬、张栋良、许彩芬、顾亚春、孙昊绿建:周玉辉、朱小波、钮晓琳、翁宇航、程传雅、汪周贤材料:钢筋混凝土、木材、铝板、Low-E玻璃、光伏板品牌:嘉盛光电光伏板、霍曼门窗、威卢克斯天窗、严实钢框型材