赭溪历史文化示范区售楼处
古代医典《灵枢》中写到:“春生、夏长、秋收、冬藏,是气之常也,人亦应之”。”天人合一,顺应四时,二十四节气以及对应节气应该的吃穿住行都是学问”。我们将这些理念强调在售楼处的每一个空间里,并通过历代拥有美好寓意和诗意的物象来表达。通过现代艺术手法,追...
- 项目名称:赭溪历史文化示范区售楼处
- 项目地点:浙江省 台州市 天台县赭溪历史文化示...
- 开发商:天台杨帆赭溪房地产开发有限公司
- 设计参考价:¥3500/㎡
- 项目类型:其他
- 形态:示范区
- 建成时间:2020年
- 风格:中式
- 设计面积:1200㎡
- 容积率:1.1
- 发布日期:2024-11-01
- 最近更新:2024-11-01 10:19

设 计 解 析
古代医典《灵枢》中写到:“春生、夏长、秋收、冬藏,是气之常也,人亦应之”。
”天人合一,顺应四时,二十四节气以及对应节气应该的吃穿住行都是学问”。
我们将这些理念强调在售楼处的每一个空间里,并通过历代拥有美好寓意和诗意的物象来表达。
通过现代艺术手法,追求空间与自然共融,打造一个“动与静、声与色、形与意”的售楼空间。
售 楼 处 实 景
01
无即是有
风潮争汹涌,神怪何翕忽。
——李白·《天台晓望》


开篇即是恢弘的基调。入门接待处,李白的登船吟诗,全水晶打造的山峦吊灯,通过艺术家的雕刻渲染描摹,层层叠加,共同勾绘出天台这一灵秀之地的自然和人文之魂。空间主题浑然天成,场景体验沁人心脾。
02
小即是大
龙楼凤阙不肯住,飞腾直欲天台去。
——李白·《琼台》



通过借景入室的手法,运用落地窗将室外的园林景观拉近,朦胧中引光纳景,涌动出自然透亮的生趣。空间中正统的绛红与水墨晕染的卷帘晕染开来。暖白色的灯光点缀出空间的节奏,与地板的冷灰调形成冷暖对比,呼应着山水画的诗情画意,共同在有限的空间中营造出无限的东方韵律。
03
喧便是寂
爽气遥通天际月,沧波不隔海中山。
——李白·《琼台》


在随意的诗意氛围中,洽谈区宛如一处庄严的秩序空间,成熟稳重的空间排列,绛红色花器点缀出空间的节奏,现代与传统的交叠,呈现出新天台、新城市的缩影。



返璞归真的原木茶台桌面,清透绚丽的山形水晶灯取自山之形水之意的发想,真正的体味出“无丝竹之乱耳,无案牍之劳形”的惬然之意。

古典雅致的细物所营造的氛围,在喧嚣与繁华过后,回归自然,乐享自由,与浩渺天地相融,萧然忘羁......

深度洽谈区原木木色调带来温馨,藏青带来宁静和内敛,咖色皮革带来高雅与典质。让传统色彩、天然材质和精湛的工艺一起为我们讲述一个舒适、温馨、自然还带点小资的古老的新故事。
04
拙便是巧
天台连四明,日入向国清。
——李白·《送王屋山人魏万还王屋·并序》

二楼水晶饰配合圆盘底座,寓意拢气聚财,边墙饰使用了山水宝塔形式,将天台地域文化传递的更为直接。

vip室选用了高品质的传统中式风格作为空间主基调,高级米白色系携手象牙白色大理石点缀空间,让空间简洁之余富有美学张力,展现出空间灵动性和韵律感。背景装饰墙彰显东方韵味的艺术气息,点亮整个空间。


付款区中庭吊灯采用纯铜锻打荷叶组合吊灯,光线柔和,质感突出;造景台上摆置高品质纯铜摆件,配置一副圆月半圆主题装置画,体现一年四时意味。
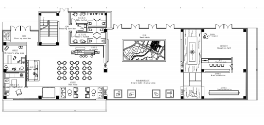
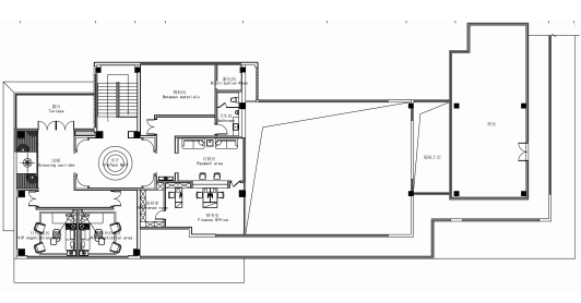
平面图

一层平面图

二层平面图
项目名称:赭溪历史文化示范区售楼处
项目地点:浙江·天台
项目面积:1200㎡
设计机构:GLD绿檀室内设计与软装
设计团队:徐帆、陈小芹、吴永华
联系方式:徐先生 18758569909
公司创始人介绍:
徐帆,GLD绿檀公司创始人,为浙江大学硕士研究生,曾赴英国伦敦作交换留学,有着多国游历经验。毕业后在绿城房产集团任职多年,不但具有丰富的甲方管理经验,而且有优质的乙方设计经验,在设计领域中对国际时尚文化有着极为敏锐和独到的领悟,极具国际设计视野。

绿檀设计
浙江绿檀装饰工程设计有限公司为多种类型的项目提供优质的室内设计和软装陈设服务,包括住宅项目,如样板房、售楼处、会所等;私人住宅如公寓及别墅;餐厅、酒店、服务公寓及商场等酒店、餐饮项目。我们秉承设计无界限的理念,通过文化融合、品牌整合、产品及设计师合作等协作方式得以充分体现并进一步加强。同时,通过和美国、欧洲的顶级品牌和设计师多年的紧密合作,将欧美最顶级的品牌引进中国。
Zhe Jiang lvtan decoration engineering design co ltd. provides quality interior design and soft furnishings services for various types of projects, including residential projects, such as model houses, sales offices, clubs, etc. Private residences such as apartments and villas; Restaurant hotel service apartments and shopping malls such as the hotel catering project, we uphold the concept of design has no boundaries, brand integration and product designers through cultural fusion and collaborative approaches to cooperate fully embody and further strengthen at the same time, through and the United States, Europe's top brands and designers work closely together for many years, will be Europe and the United States's top brand into China.
金盘网APP
金盘网公众号
金盘网小程序


