中山雅居乐湾际壹号
未来,雅居乐湾际壹号还会建成商业居住一体化,项目规划有丰富的商业配套设施,将打造集购物、商务、文化、社交、居住和教育为一体的新型生态社区。
服务范围:地产开发-住宅
销售参考价: 13000 元/平方米- 项目名称:中山雅居乐湾际壹号
- 项目地点:广东省 中山市雅居乐湾际壹号
- 开发商:雅居乐
- 销售参考价:¥13000/㎡
- 项目类型:住宅
- 形态:大区
- 市场定位:刚改系
- 建成时间:2024年
- 风格:现代
-
主力户型:高层 平层 120-144㎡ 3室 2厅 3卫
高层 平层 70-90㎡ 2室 2厅 1卫 - 占地面积:720000㎡
- 建筑面积: 980000㎡
- 容积率:3.8
- 绿化率:30%
- 装修类别:精装修
- 发布日期:2024-12-18
- 最近更新:2024-12-18 09:55





时隔一个月,来到6月30日,湾际壹号再次交付雅深花园一组团1/2栋!





▲悬浮的盒子©战长恒
从荒芜之地到繁华之城, 在马鞍岛这片热土上需经历持续上十年的不懈建设, 一个小小的展示中心设计如何能经得起时间的考验?项目在设计的初始就摒弃了市场上一贯的营造手法,付之以具有艺术内涵的美术馆式的设计思路,展示中心自身即为一件精致的艺术品。
“少即是多”,没有多余的线条,没有多余的装饰,大虚大实的建筑立面,同时兼顾城市的景观界面与建筑的功能需求。每一片石材的比例、每一块玻璃颜色、每一处节点的推敲均是最精确的镶合,湾际壹号展示中心代表着北塔项目的精工细琢,隽永内涵。

▲项目区位©XAA建筑事务所
雅居乐·湾际壹号展示中心位于中山翠亨新区的马鞍岛,作为深中通道的重要一环,马鞍岛日后有着巨大的发展潜力,接续深圳前海,在深中通道开放后,将为新城带来更多机会与活力。

作为雅居乐在翠亨新区首开住宅的第一张名片,湾际壹号展示中心奠定了整个项目素雅大气的主基调。
建筑本身没有过多的繁杂修饰,尽量以最简约的设计形态呈现,在诠释建筑沉稳调性的同时,结合精细把控的虚实比例,给建筑以通透感,降低大体量所带来的压迫,呈现出干净纯粹的建筑立面。

设计手稿©冼剑雄

▲建筑模型©任天

▲西立面©战长恒

建筑整体以“T”字型构成独特的形态符号,同时结合室内楼梯在立面上创造出一条倾斜向上的直线线条加强了建筑的稳定感,达到功能与形式的统一。楼梯在流线上连接了销售中心与样板房区域,可带来一段室内外光影交融的步行体验。

▲“T”型立面©战长恒

▲室内外交融©战长恒

▲外挑的楼梯©战长恒
而北侧的“瞭望口”抬高至三层的高度,面向地块北侧的珠江支流,充分利用场地景观资源,也成为进入地块的第一个形象展示面。

▲“瞭望口”©战长恒
建筑首层采用8米高的落地超白玻璃,与严丝合缝的石材干挂立面形成对比,虚实结合,局部通高空间极大地增强建筑首层的空间感受。场地前场也配合采用较为简洁的构成手法,让建筑与前场水域相互呼应融合,如飘浮于水面的通透宝盒。

▲通透宝盒©战长恒

▲浮于水面©战长恒

▲修长体量©战长恒

三层局部设置了一个空中庭园,结合建筑顶部开口,将自然光线与满园绿意纳入建筑之中,使建筑内部各处均有足够的景观视野与自然采光,更好地提升内部空间体验,给室内带来丰富多彩的光影效果。

▲空中庭园©任天

▲多维景观©战长恒

▲前场步道©战长恒

▲次入口©任天

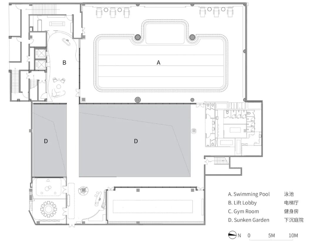
下沉庭院结合建筑东侧的负一层空间设置,层层叠水与松树景观,不仅化解了负一层空间在光线与视野上的不利条件,同时也保证了日后功能转变后的私密性需求。庭院处同样采用了落地的超白玻璃,旨在将外部的环境景观直接引入建筑内部,模糊室内外边界,融合空间。庭院内的斑驳树影,也为负一层活动空间带来了更加生动的空间效果。

▲下沉庭院

▲下沉庭院

▲下沉庭院

建筑主体以干挂的素雅白色泥客石为主,整体更为干净,勾勒出建筑挺拔轮廓。与深色铝合金杆件或者细部相结合,更体现出建筑元素的纯粹。

▲建筑细部©战长恒

▲石材接缝©任天

▲建筑细部©战长恒

▲楼梯大样节点

▲负一层平面©XAA建筑事务所

▲首层平面©XAA建筑事务所

▲二层平面©XAA建筑事务所

▲西立面©XAA建筑事务所

▲剖面©XAA建筑事务所
项目名称:雅居乐·湾际壹号展示中心
工程地点:中山市翠亨新区
设计时间:2021年
完成时间:2022年
建筑面积:4293.23平方米
建筑方案设计:XAA建筑事务所
主创建筑师:冼剑雄
建筑方案团队:林余铭、陈振辉、黄倩仪、陈坤、李烈瑜
业主单位:雅居乐地产
甲方团队:桑红梅、张华、肖国浩、尚金虎、刘常、张立本
建筑施工图设计:广州市番禺城市建筑设计院有限公司
室内设计:上海思域建筑设计有限公司--HWCD
景观设计: 上海朗道景观规划设计有限公司
摄影:九里建筑战长恒、任天
金盘网APP
金盘网公众号
金盘网小程序




