首发 | 保亿中心 探索未来办公新模式
随着人们对办公空间品质要求的不断提升,楼龄较新且品质卓越的办公楼资产在市场中持续展现出显著优势。融合式办公空间更是备受青睐,其不仅营造了宜人的整体办公氛围,更通过优质办公环境有效提升了工作效率。因此,在企业选择办公地点时,除了考虑地段、配套设施和周...
- 项目名称:首发 | 保亿中心 探索未来办公新模式
- 项目地点:重庆市 重庆市 南岸区重庆南岸经济技...
- 开发商:保亿集团开发有限公司
- 设计参考价:¥1000/㎡
- 项目类型:办公
- 形态:示范区
- 建成时间:2024年
- 风格:现代
- 设计面积:460㎡
- 容积率:1
- 发布日期:2025-04-22
- 最近更新:2025-04-22 10:10
introduction 工作占去一个人一生中最有活力 最具创造性的大部分美好时光 而作为人们停留时间越来越久的场所 办公空间已经成为人类活动空间中 重要的组成部分 同时随着科技的发展 和人类意识的不断转变 也经历着一个大的变革 ——阿兰·德波顿 《职场启示录》

随着人们对办公空间品质要求的不断提升,楼龄较新且品质卓越的办公楼资产在市场中持续展现出显著优势。融合式办公空间更是备受青睐,其不仅营造了宜人的整体办公氛围,更通过优质办公环境有效提升了工作效率。

因此,在企业选择办公地点时,除了考虑地段、配套设施和周边环境外,空间布局的合理性以及整体装饰的触动感也成为越来越重要的考量因素。
本次项目位于重庆南岸经济开发区,作为该区域内稀缺的优质办公场地,其办公样板区以当前备受瞩目的融合办公模式为核心,积极探索未来办公的新趋势。 此举不仅有望引领城市办公模式的创新变革,更将为区域内的企业发展提供有力支持,共同推动重庆南岸经济开发区的繁荣与发展。


Ground floor concourse 时光流动——会逢其适

对于企业而言,办公空间已经超越了单纯的功能性需求,它成为了展现企业实力与品牌形象的重要载体。传统的格子间办公模式已逐渐让位于更为开放、灵活的体块盒空间,这种转变不仅体现在物理空间形态上,更在于空间设计理念的根本变革。
Reception area 初遇之地——典雅舒适

现代办公空间的设计越来越注重人的感受和需求。它不再仅仅是追求建筑空间效益的最大化,而是致力于创造一个能够激发员工创造力、提高工作效率,同时又能体现企业文化和价值观的环境。在这样的办公空间中,员工能够感受到企业的关怀和尊重,从而更加积极地投入到工作中去。

将人的因素放在首位,通过灵活的空间布局、舒适的环境营造以及人性化的配套设施,打造一个既符合现代办公需求,又能彰显企业独特魅力的办公空间。这样的办公空间不仅有助于提升企业的形象和品牌价值,还能吸引和留住优秀的人才,为企业的发展提供源源不断的动力。
Sand table area 凝视时光——携画未来
地段与整体园区环境在办公选择中占据着至关重要的地位。一个优越的地段不仅能够提供便捷的交通和配套设施,还能够吸引更多的优质人才和企业进驻。而一个优美的园区环境则能够提升员工的工作效率和幸福感,有助于打造一个积极向上的企业文化。

开放的格局设计,打破了传统的空间限制,增强了空间的流动性和灵活性。沙盘轻盈地悬浮在空中,与超大落地窗形成了绝妙的呼应。沉稳典雅的绿植花器也为空间注入了更多的生机与活力。
Open office area 空间感知——灵感旅程
设计团队精心策划,充分利用巨大落地窗外迷人的街景,以创新理念展开平面布局。他们聚焦于工作中的自主与灵活,突破实用主义的单调桎梏,将多元办公场景巧妙融合。在这一布局下,办公区、讨论区与休闲区的界限被优雅地模糊,空间以动态流动的形式展现无限可能。



灵活开放的办公区域和员工讨论空间,摒弃了传统封闭的秩序感,代之以更为自由、富有创意的氛围。温和的木色基调与巧妙点缀的浅黄色,共同谱写出层次丰富的空间交响乐,而点缀其间的小巧绿植,则为这场景增添了几分生机与趣味。


家具的配置同样匠心独运,可灵活调整的组合设计,轻松应对小组讨论、个人专注工作、跨部门协作、头脑风暴以及培训会议等多样化工作需求。每一处细节都透露着对现代办公方式的深刻理解与前瞻性思考,共同营造出一个既实用又富有灵感的办公环境。

设计团队在构思这个办公空间时,巧妙地融入了学习与工作的无缝衔接理念。他们将书柜作为隔墙使用,不仅巧妙地划分了空间,更为整个办公区域注入了浓厚的学术氛围。超多的专业书籍密密麻麻地填充着书柜,从经典著作到前沿研究,无一不彰显着这里的专业与深度。
Water lounge area 诗意绿洲——重焕生机
办公区外的休闲水吧区,犹如一片工作间的绿洲,是忙碌时刻的最佳避风港。这里的环境优雅宜人,沙发座椅柔软舒适,能在工作间隙迅速为身心补充能量,让人重新焕发活力,精神焕发。

空间内点缀着低调却不失活力的黄色元素,如同阳光般温暖而明亮,为整个空间注入了源源不断的生机与活力。精美的花艺装饰点缀其间,不仅提升了空间的艺术气息,更在美感与灵感的交织中,激发出思想的火花。

巨大的落地窗外,吧台区成为了人们休憩放松的热门之选。站在这里,可以远眺窗外的风景,让思绪随着视线飘荡,享受片刻的宁静与放松,回溯内心的平静与从容。


办公空间内精心打造的水吧区,以“咖啡物语”为主题,陈列着琳琅满目的咖啡与各式器皿。对于现代打工人来说,“咖啡续命”已成为他们最钟爱的选择。在这里,一杯香浓的咖啡,伴随着轻柔的音乐,享受着片刻的闲适与惬意,便是最好的放松方式。
Conference room 决策高地——对话真理
在会议室内,一旦开启专注模式,周围的一切仿佛都变得静谧而深沉。舒适高大的座椅承托着身体,即便是在开会时激烈思维碰撞,也能让人倍感舒适与放松。座椅的设计既符合人体工程学,又兼具美学价值,为严肃的会议氛围增添了一抹温馨与舒适。
低调沉稳的皮革制品与木饰面基地形成鲜明反差,这种材质的碰撞不仅为空间带来了层次感,更让严谨的会议室空间焕发出灵活与多变的气息。无论是需要进行深入的讨论还是高效的决策,这个会议室都能迅速切换至相应的模式,满足团队在不同工作场景下的需求。

空间内的绿色植物点缀在桌面和角落,它们是这个严谨空间里的精神寄托。那一抹抹绿意仿佛能消除所有的疲惫与焦虑,让人在紧张的工作之余也能感受到大自然的宁静与美好。这些绿色植物不仅美化了环境,更提升了空间的整体气质,为团队创造了一个更加宜人、高效且沉浸的办公空间。

Finance office 财富枢纽——精准掌控
在办公空间的设计中,遮蔽与通透的尺度是一项至关重要的考量。这种平衡不仅关乎个人隐私的保护,同时也影响着开放空间的视觉感受。设计师们需要巧妙地运用各种元素和手段,在确保隐私的前提下,不破坏整体空间的开放性和通透性。

独立办公室的设计则延续了公共区的空间调性,以轻盈时尚为设计思考的出发点。通过削弱传统领导办公室的商务感,设计师们打造出了一个更加简洁、舒适且富有现代感的工作环境。简洁的体块、经典的色调以及精致的细节处理,共同服务于简洁有力的空间叙事,展现了一种全新的办公空间美学。

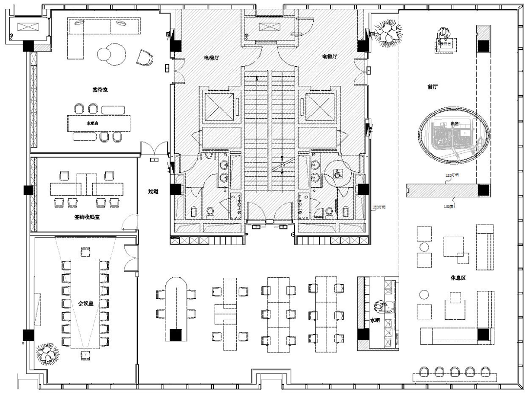
Plane graph 保亿29产业园
项目名称 | 重庆市保亿中心 业主单位 | 重庆保亿 项目位置 | 重庆南岸经济技术开发区 项目类型 | 办公展示区 建筑面积 | 约470㎡ 完成时间 | 2024.2 甲方团队 | 陈晓春、宋昊 设计公司 | 海力空间设计 设计范围 | 软装
金盘网APP
金盘网公众号
金盘网小程序


