海力作品 | 华润置地&香港置地·观宸 架空泛会所 第...
作为华润置地&香港置地联袂打造的城市封面之作,观宸踞守重庆观音桥CBD极核,以“不可复制的珍藏孤品”之姿,重新定义城市人居高度。其业主多为80后高净值人群为主,追求“精致高品生态生活”,既看重地段价值,亦渴望空间承载精神共鸣。在这个追求品质与美学的时...
- 项目名称:海力作品 | 华润置地&香港置地·观宸 架空泛会所 第一篇章:艺术入核 生活奢享 美学纪
- 项目地点:重庆市 重庆市 江北区观音桥
- 开发商:香港置地,华润置地
- 设计参考价:¥1500/㎡
- 项目类型:其他
- 形态:大区
- 建成时间:2025年
- 风格:现代
- 设计面积:3558.68㎡
- 容积率:1
- 发布日期:2025-08-07
- 最近更新:2025-08-07 15:21
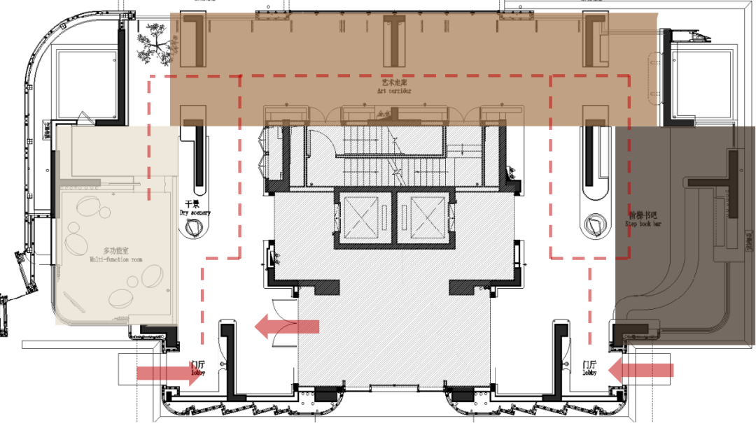
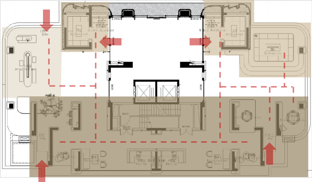
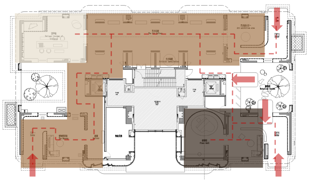
第一篇章|美学纪 THE FIRST TEXT 解构繁琐 以简洁的艺术直达心灵 当艺术基因注入城市核心 关于生活的“精神奢享”正在发生 —— 海力空间 观宸:时代瑰宝的降临 CENTURY LAND 作为华润置地&香港置地联袂打造的城市封面之作,观宸踞守重庆观音桥CBD极核,以“不可复制的珍藏孤品”之姿,重新定义城市人居高度。其业主多为80后高净值人群为主,追求“精致高品生态生活”,既看重地段价值,亦渴望空间承载精神共鸣。 在这个追求品质与美学的时代,每一个细节都成为了衡量生活格调的标尺。从项目拿地之初,海力设计便深度参与全周期设计——从户型优化到展示区呈现,从交付区空间规划到软装艺术落地,以“长期主义”思维打造可持续的生活场景。 艺术为脉 经典永续 CENTURY LAND 在艺术层面,海力设计深刻洞悉了项目业主对艺术美学的极致追求。在观宸,艺术不是点缀,而是空间的灵魂。海力设计深谙:唯有艺术能跨越时间,让空间成为“可传承的生活载体”。 架空泛会所的设计围绕“楼下的美术馆”这一主题展开,以“尊崇与精致并存”为核,融合功能、品质、文化三重维度。通过艺术品与空间的巧妙结合,营造出一种高贵沉稳、奢华而不失惬意的生活氛围。 在观宸的架空泛会所内,海力精心布置了大量艺术品与美术作品,并邀请众多青年艺术家携手共创,共同塑造观宸独有的艺术氛围。通过融合重庆城市及电测村的历史文化,同时引入全球前沿的艺术美学元素,观宸架空泛会所被打造成了一个充满艺术魅力的独特空间。 A1# 家楼下的艺术馆 A1的架空泛会所,以“家楼下的艺术馆”为逻辑,织就一幅艺术长廊、落日书吧与多功能读书室交织的空间画卷。在这里,每一寸空间都浸润着艺术的芬芳,每一页书籍都承载着智慧的重量,共同致敬那不朽的艺术与灵魂之粮。 落日书吧 Book Bar 落日书吧,一处以阶梯为序,书卷为伴的静谧殿堂。 这里,皮质座椅温柔地承托着每一个寻觅知识的灵魂,与柔和的氛围灯、细语般的室内苔藓植物相互映衬,织就一幅温馨而雅致的画卷。当夕阳如金,恰好洒落在这方寸之间,时光仿佛凝固,静谧中蕴含着思想跃动的无限可能。 书架上,是近十年来热榜书单的精华荟萃,每一本都经过精心挑选,如同艺术的珍品,静静地陈列,等待着有缘人的目光停留。它们不仅承载着文字的厚重,更蕴含着智慧的火花,只待你随手拿起,便能开启一场心灵的旅行,轻松阅读间,让艺术与书籍的力量,悄然滋养你的心田。 悠享画廊 gallery 光影于辉,程曦如沐 这是一条独具匠心的艺术空间,专为展示世界文学的璀璨瑰宝而设。长廊的每一面墙,都化身为名著的展廊,精心挑选的名著内页被放大装裱,宛如一幅幅引人入胜的艺术挂画,静静诉说着故事。 长长的艺术走廊,每一步都是景致。捕捉光线与色彩在金属质感表面上的流动与变幻。通过细腻的笔触和精心调配的色调,每幅画作都展现了鎏金材质在不同光影下的独特魅力。 艺术品:《思想的重量》 以雕塑的形式,打造了“思想的重量”这一作品。 书籍的文字被拓印于石面之间,如同星辰在文字的海洋中闪耀,引领我们探索未知的领域。这不仅是与伟大思想的对话,更是在沉默中汲取力量的源泉。在这里,我们找到的不仅仅是故事,更是理解、共鸣与启发的宝藏。 每一幅挂画,都是对一个时代文学巅峰的致敬,每一段文字,都承载着深邃的思想与丰富的情感。艺术展厅的巧妙呈现,不仅满足了空间的多功能需求,更为项目增添了独一无二的价值与魅力,提升了品牌形象。 谧享书藏 Book Collection 在开阔自如的游走场景之外,海力还悉心根据业主的多元化需求,匠心独运地打造了一个半封闭的多功能空间。这个空间巧妙融合了多媒体数字影音设备,不仅丰富了社区的文化内涵,更塑造了一个多功能的阅读天地,让每一位访客都能在此找到属于自己的阅读乐园。 设计灵感源自自然主义与生活方式的和谐共生,巧妙融合了重庆这座山水相依、江峡交织城市的自然韵味与现代建筑的简约风尚。四季之感随着空间深入缓缓推进,满足了人们对自然的亲切渴望。 B3# 让过去拥抱未来 B3架空泛会所,以“岁月如歌的时光印记”为主题,巧妙布局。展览博物馆诉说着电测村的往昔,艺术走廊流淌着创意的火花。从历史的深沉到未来的璀璨,时间在这里缓缓流淌,编织着观宸的过往与梦想。一步一景,皆是时光的礼赞。 时间印记 Time stamp 这是一条悠长的记忆长廊,将电测村与观音桥的过往与现今,以艺术化的历史图文形式展现。建筑,作为故事的骨骼,以“重楼”之姿傲然屹立,剖面图中每一线、每一面都透露着设计的精妙。规划,则是故事的脉络,引领我们见证从荒芜到繁华的蜕变,“观宸之花”的设计理念让每一寸土地都绽放活力。 人,是这段故事的灵魂。他们在这里生活、成长,用笑容和泪水编织成观宸最温暖的记忆。住在观宸,便是成为这段历史的一部分,感受它的呼吸,聆听它的心跳,让自己的故事与观宸的故事交织在一起,共同书写着属于这个时代的传奇。 在这里,我们不仅是旁观者,更是参与者,用我们的生活,我们的梦想,为观宸这幅历史画卷添上最绚烂的一笔。观宸,不仅仅是一个地名,更是一种情怀,一种对美好生活的向往与追求。 艺术品:《兰亭雅意》 专为观宸匠心打造的艺术品——《兰亭雅意》,灵感源自重庆常见的黄桷兰花。花瓣轻盈如黄蝶翩翩起舞,鲜亮的色彩在葱郁的绿叶间跃动,格外引人注目,为大自然这幅画卷添上了一抹明媚而温暖的阳光。 艺术品:《记忆映像》 以电测村为灵感原型,匠心独运地打造了雕塑《记忆映像》。该雕塑采用金箔涂层复合材料制作,通过原址的今昔鲜明对比,生动展现了时间的缓缓流动与变迁,让人深刻感受到,我们亦置身于这悠长的历史长河之中。 艺术品:《垒砌》 这座雕塑以几何体的巧妙垒砌,既展现了建筑独特的艺术美感,又彰显了结构的稳固与和谐之韵。它不仅是对数学严谨逻辑与工程学智慧的致敬,更是对无限创造力与高尚审美追求的深情颂扬。 文化美学馆 Aesthetics Museum 观宸深谙高净值人群的生活需求,于架空泛会所之中,匠心独运地打造了一个封闭的场馆沙龙空间。空间内,长条桌环绕围坐,构成了一个可容纳多人的洽谈区域,无论是举办小型聚会,还是召开临时会议,皆可在家楼下轻松实现。 艺术憩域 Resting area 绿色百叶窗,承载着老重庆人童年的城市记忆。以此为装饰背景,阳光透过缝隙自然洒落,勾勒出艺术般的空间轮廓。沙发区随意落座,选材上特意考量重庆日照特点,选用不易因光照而变色的材质,让每一次落座都倍感舒适。 极光交响厅 Symphony Hall 以音律的韵律打造专属业主的钢琴预约室,琴房空间宽敞,采用专业吸音材料装修,以台阶式设计为热爱音乐艺术的业主搭建展示舞台。同时,设有舒适的等候观赏区,让艺术更加贴近每位业主的心灵。 A2# 假日繁花·臻镜叙事 A2架空泛会所,以繁花为序,展开一场空间叙事之旅。精选重庆特色的山茶花、黄桷兰、栀子花、玉兰花等,经过艺术化的巧妙变身,让这里的聚会时光如同在安曼酒店般,绚烂多彩,生动有趣。 花间密语 Flower Room 架空泛会所,内景外景巧妙交融,室内宛如一幅生动的画卷。这里,被打造成了一个聚会与品鉴的绝佳中心。桌面上,花艺装饰绚烂多彩,玉兰花、山茶花、栀子花的雕塑在空间中创意呈现,宛如自然之灵的巧妙笔触。 流光溢彩,不舍昼夜,优雅的氛围让人沉醉其中,悦己而忘忧。生命的活力与主张,在这片绿意盎然中蔓延流淌,仿佛每一株植物都在诉说着属于它们的故事。 艺术品:《绽放为花》 花朵雕塑以细节展现了花之美,花苞即将绽放的瞬间,仿佛凝固了时间。流光不抛,优雅悦己。生命的主张,在植物中蔓延流淌。 艺术品:《玉兰梵音》 提取玉兰花的元素,进行再次创造,悄然绽放宛如洁白的云朵,散发出淡淡的芬芳,给人以温暖与慰藉。 艺术品:《山茶倾情》 山茶在寒冬中傲然绽放,散发清幽香气,诉说着坚持与希望的故事。是自然的馈赠,成为人们心中温暖而浪漫的象征。 炉岛趣味 Furnace Island 受安曼下沉式会客厅灵感,我们匠筑炉岛,一方尊享之域。炉岛之中,奢华与悠然并存,下沉式设计,宛如秘境。踏入其内,灯光阑珊,装饰雅韵,心随境转。于此,慢品时光,悠然如诗,生活之雅致,悠然而生。 繁花时间 numerous flowers 岁月悠悠,繁花似锦中细品流年韵味,自然之姿最是撩人心弦。于这空间之内,我们巧妙窃取自然之灵,以灯为笔,造景为卷,流动的曲线如丝带般引领着视线翩翩起舞。 空间一隅,酒水休闲区悄然绽放,各式花朵形态被精心提取,借由不同材质之巧手,创造、重组,幻化出一幅幅优美的视觉盛宴。艺术,就这样悄然融入生活,与美,不期而遇。 艺术品:《花开山间》 山茶花,素雅中透着娇美,花瓣宛若细腻的绸缎,轻轻抚摸间,柔滑无比。那色彩,从纯洁无瑕的白渐渐晕开,如同春日晨曦的第一缕光芒,温柔地洒落大地,为这世间添上一抹清新亮丽的风景。 艺术品:《繁花时光》系列 我们萃取各式花朵的曼妙形态,借助多样材质的魔力,巧妙创造与重组,编织出一幅幅令人沉醉的视觉画卷。艺术,就这样悄然融入日常的每一个角落,与美好不期而遇,让生活绽放出别样的光彩。 观宸架空泛会所·系列纪 CENTURY LAND OPEN FLOOR CLUB 项目名称 | 华润置地&香港置地·观宸 业主单位 | 华润置地&香港置地 项目位置 | 重庆观音桥 项目类型 | 架空泛会所 A1/A2/A3/A4/A5/B2/B3/B4/B5 设计面积 | 约3558.68㎡ 完成时间 | 2025.2 设计公司 | 海力空间设计 设计范围 | 室内设计+软装设计+软装工程



























































金盘网APP
金盘网公众号
金盘网小程序




