海力作品 | 华润置地&香港置地·观宸 架空泛会所 第...
作为华润置地·香港置地联袂打造的城市封面级作品,观宸踞守重庆观音桥CBD几何极核,与中环万象城构成“黄金十字”商业矩阵,五重立体路网与轨道交通枢纽环伺。这里不仅是城市资源的聚合点,更是塔尖人群生活方式的“理想实验场”。项目以“核心区孤品”之姿,精准...
- 项目名称:海力作品 | 华润置地&香港置地·观宸 架空泛会所 第三篇章:场景赋能日常 生活纪
- 项目地点:重庆市 重庆市 江北区观音桥
- 开发商:华润置地,香港置地
- 设计参考价:¥1500/㎡
- 项目类型:其他
- 形态:大区
- 建成时间:2025年
- 风格:现代
- 设计面积:3558.68㎡
- 容积率:1
- 发布日期:2025-08-07
- 最近更新:2025-08-07 15:43

第三篇章|生活纪
THE THIRD TEXT
建筑是承载生活的容器
体验才是空间的灵魂
场景赋能于日常
以体验驱动设计内核
赋予空间情感温度
—— 海力空间
观宸:未来生活的提案
CENTURY LAND
作为华润置地·香港置地联袂打造的城市封面级作品,观宸踞守重庆观音桥CBD几何极核,与中环万象城构成“黄金十字”商业矩阵,五重立体路网与轨道交通枢纽环伺。这里不仅是城市资源的聚合点,更是塔尖人群生活方式的“理想实验场”。项目以“核心区孤品”之姿,精准锚定80后高净值人群对“私密性、圈层归属、场景化体验”的复合需求——他们渴望的不仅是物理空间,更是能伴随家庭成长、承载情感记忆的“生活容器”。

设计前置,构建可持续的生活载体
从项目拿地之初,海力设计便以“长期主义”为内核,深度参与该项目每一期的全周期设计,从户型优化到展示区呈现,从交付区空间规划到软装落地。
精研塔尖人群的生活轨迹,遵循其独特的生活场景化需求,通过更多模块化弹性化设计,预留未来场景迭代的可能性;在更多的公共空间内植入灵活功能模块,兼顾私密性与社区交互,让空间成为“可生长的生活载体”。


场景赋能生活 空间既纽带
CENTURY LAND
在观宸的架空泛会所设计中,我们以“生活温度”为原点,将架空泛会所转化为“社区生活枢纽”,致力于打造一个充满温度与灵魂的社区空间——通过主题模块化分区,串联起楼下的美术馆、童梦绘本、美食工坊、亲子手作馆、轻氧健身区、邻里社交吧等场景,让业主下楼即享高品质生活服务。

设计不止于硬件,更在于场景的持续激活。在观宸的架空泛会所我们除了进行空间设计外,还引入了“空间运营手册”。为每个空间未来的场景化生活,进行了可描摹的活动可能性。如:联合业主与品质工作室,定期策划主题市集、咖啡品鉴、手工沙龙等活动……观宸让“楼下生活”成为日常仪式,与业主共同书写“家门口的诗意”。

A4#
摩登生活 绅士场域

A4架空泛会所,以绅士的独到视角匠心打造,空间洋溢着轻奢、雅痞与克制的独特质感。这里巧妙融合了后期运营潜力巨大的桌球区、手游区及桌上足球区,通过精致的空间设计重塑场域氛围,为高品质生活带来前所未有的全新定义。
桌上游趣
board games


在这个喧嚣繁忙的都市生活中,我们每个人都渴望拥有一个能够放松身心、尽享娱乐的私密空间。通过巧妙运用色彩与明暗的对比关系,我们精心打造了一个半封闭的桌上玩乐区。

这里,无论是桌游对战、手工创作,还是小型聚会,都能轻松满足你的需求。它就像家的一个延伸,将家的温馨与舒适带到了离你最近的地方,拓展了家的场景边界。
游乐人生
Game of Life
以球会友 交驳人生


在架空泛会所的一隅,精心打造了一间桌球室,这里是以球会友、放松身心的绝佳之地。踏入这方桌球空间,映入眼帘的是标准的球台,其平整的台面仿佛在诉说着对精准与技巧的追求。精致的球杆整齐排列,每一根都蕴含着匠人的心血与对品质的坚持。精心设置的计分器,不仅记录着比赛的胜负,更见证着每一次技巧与智慧的碰撞。

以沉稳与雅致的空间质感为主调,从灯光到装饰,每一处细节都透露着对品质生活的追求。这里,不仅是塔尖群体展示桌面技艺的舞台,更是他们放松心灵、享受生活的私密天地。
绅享静谧
Gentleman Tranquility

对于塔尖人群而言,外界的压力如影随形,但他们总渴望有一片属于自己的天地,能将这些重负悉数卸下,不愿将其带入温馨的家中。于是,架空泛会所内的那一方天地,便成了他们理想的避风港。

在这里,他们可以找到一处静谧的角落,坐在舒适面料的座椅上,让身体得到彻底的放松。闭上双眼,耳边似乎能听到远处喧嚣的隐约回响,但在这里,那些都变得如此遥远,如此微不足道。

空间的开阔感与户外景色的交相呼应,为他们的心灵打开了一扇窗。绿意盎然的景致、微风轻拂的惬意,都仿佛在为他们的灵魂洗礼,为他们疲惫的身心充电。在这里,他们可以暂时忘却日常的工作喧嚣,抛开尘世的各种烦恼,让心灵得到真正的宁静与自由。


此外,这架空泛会所还为他们提供了一个社交的舞台。在这里,他们可以遇到志同道合的朋友,分享彼此的故事,交流生活的点滴。或许是一次偶然的邂逅,或许是一次深入的交谈,都能让他们的心灵得到慰藉,感受到人与人之间的温暖与连接。在这样的环境中,他们不仅放松了身心,还收获了珍贵的友谊和人生的智慧。
A5#
女子氢氧 三杯两盏

A5架空泛会所,以女性的细腻视角与独特感受为出发点,精心打造了一动一静、富有生命力的社区空间。一处是冥想与伸展的瑜伽天地,通过室内的巧妙规划,让自然景物仿佛触手可及,营造出室内与外界景观相互交融、相互探索的奇妙氛围,让人在冥想中更加亲近自然。另一处则是美学与创意并存的水吧区,以酒为媒介,引领设计区的社交新风尚,打造出一个泛空间的社交场所。
洄游·寻饮
drink freely

以光为引
以瓶为器 生活无限可能
在这座繁华的城市里,每一天,每一个角落,每个人的生活都在悄然编织着属于自己的故事。我们既是他人故事中的过客,也是自己人生舞台上的主角。灯光虽明亮而不刺眼,音乐虽热闹却如湖水般宁静致远,让人心旷神怡。一缕夕阳洒入,光阴的幻化与梦幻,造就了都市生活的不可替代感。


在这样的温馨空间里,精美雅致的灯饰与错落有致的酒瓶相互映衬,营造出一种别样的氛围。在家附近的这一隅天地,邀上三五知己,小酌几杯,开启一场专属于大女主的精致酒会,享受那份独有的尊崇与惬意。


艺术品:《遗忘的冥想》
以褶皱勾勒肌理之韵,以斑驳印记过往之痕,以炫彩描绘未来之景。这幅空间艺术品挂画,看似抽象无意义,实则能在不同心境的映照下,折射出观者当下最真挚的内心世界。

选用特别优选的易打理防水面料作为半开放式空间的装饰布料,为物业的后续管理带来了极大便利。同时,融入艺术品雕塑元素,使得空间质感更加典雅且充满艺术气息。装饰幕墙上零星点缀的光点,不仅巧妙地划分了空间区域,更增添了一份朦胧之美,令人陶醉。

艺术品:《石·韵》
艺术家通过自然元素的液态银与石头的完美结合 ,使原本沉重的石头有了轻盈的感觉,给观者打破常规的反差感,同时还具有一定的未来感。将这样的置石融于空间之中,是艺术与生活的巧妙融合。
舒展·治愈
Stretching Healing

悦已的生活最是美丽
打造社区内专属的封闭式瑜伽空间,通过精细化的空间运营策略,为社区居民带来丰富多彩的健身生活体验。将最先进的健身设施与个性化的训练计划完美融合,重新定义奢华健身的新标准,让每一位业主都能在这里享受到独一无二的健身体验。奢华与健身的完美结合,让差异成为我们的独特魅力。


空间的线条与转折,宛如一首悠扬动人的旋律,散发着超越时光的质感与韵味。要营造出能触动人心的场域,就需巧妙运用空间设计的手法,让空间散发出婉转的情调,融入南法的浪漫情怀,营造出独具魅力的空间氛围。

景观艺术小景:《石·绿·韵》
灵感来源于自然界中的生命力量和生命形态,将景观植物和雕塑相结合,两者对比,给人一种深沉而又静谧的印象。亦营造了重生、秘境之境。

冥想与治愈 人生重要的课题
一处纯净的冥想疗愈之地,既可安坐一方静谧之室,亦可寻访春山之巅,于方寸之间感受宁静,于无尽之野拥抱自然。耳畔颂钵声声,伴随风铃阵阵妙音,身心仿佛经历一场灵魂的轰鸣。风起风落,云卷云舒,皆成禅意。于架空泛会所之内,精心筑造一方冥想空间,让思维与感受随着每一次呼吸缓缓流动。自然景物被巧妙融入室内,让这方空间与自然更加贴切相融,营造出一种身心灵皆归宁静的疗愈氛围。
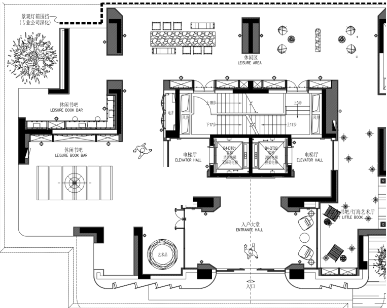
B4#
以书润思 遨享经籍

B4架空泛会所空间,巧妙融合阅读、休闲与社交,打造温馨阅读殿堂。空间布局开阔私密并存,装饰风格简约温馨。配备舒适座椅、柔和灯光及丰富书籍,满足阅读需求。同时设置多样活动空间,无论是文学沙龙还是社交聚会,皆能满足读者多样化需求,尽享阅读之乐。
肆意·书海
sea of books

设计团队深入调研受众需求,在空间布局上巧思妙想。B4泛会所空间既设有开阔的阅读区域,供读者自由遨游书海,又巧妙布置了静谧的小角落,满足读者对独享宁静的渴望,实现了开阔与私密的完美融合。


在书籍的挑选上,以满足交付型架空泛会所的多元化需求。每一本上架的图书都经过精心甄选,不再只是简单的装饰性摆设。融合了当下最流行的热门书单,同时深入调查了观宸业主的阅读偏好,特别关注“个人成长”和“心灵释放”类的书籍。无论是空间塑造还是内容陈设,都追求极致的精细与到位。
畅聊·博览
Chat freely

在装饰风格上,秉持着简约而温馨的理念,运用柔和的色调与精致的装饰品,悉心营造出一种如家般舒适的阅读环境。在装饰细节上,团队精挑细选每一件物品,从舒适的座椅、柔和的照明,到琳琅满目的书籍,无一不是为了让读者在沉浸于阅读的同时,也能享受到身心的放松与愉悦。


而活动空间的规划,更是我们精心打造的一大特色。无论是举办文学沙龙、读书分享会,还是轻松惬意的社交聚会,这里都能完美契合读者的多元化需求,为他们提供一个丰富多彩的文化交流平台。
B5#
雅奢之境 社交诗篇

B5架空泛会所匠心独运,打造了一个全新的社区共享餐厨会客厅。这一创新设计不仅为居民提供了一个可容纳多人的聚会场所,还配备了共享的厨房和聚餐区域。这一独特空间,不仅丰富了社区的共享资源,还吸引了外部专业团队入驻。在保障家庭私密性的同时,让居民能在离家最近的社区内,于最熟悉、最舒适的环境中招待朋友,满足多样化的社交需求。
诗意聚会
Poetic Gathering

围合式聚会区,一处别具一格的社交空间,拥有着超大的落地窗。这扇窗,宛如一扇通往自然的神奇门户,将户外的无限美景巧妙地引入室内。夕阳西下时,落日的余晖映照在窗上,为聚会披上一层金色的纱幔,增添一份浪漫与温馨。


围合式的设计,更是让这处空间显得格外温馨亲密。四周环绕的座椅,仿佛将人们紧紧围拢在一起,营造出一种家一般的氛围。无论是举办小型聚会、家庭聚餐,还是朋友间的闲聊小聚,这里都是全新生活的另一种状态。
欢聚时光
Longlasting Youth

与聚会区相连的是会客厅的聚餐区,这里空间宽敞,布局合理,可以轻松容纳至少12人同时用餐。舒适的座椅、柔和的灯光,营造出一种家一般的温馨氛围。在这里,你可以与亲朋好友共享美食,畅谈人生,享受难得的欢聚时光。


这一独特空间,不仅丰富了社区的共享资源,还吸引了外部专业团队入驻。他们将为居民带来更多元化的社交活动,让居民在保障家庭私密性的同时,能在离家最近的社区内,于最熟悉、最舒适的环境中招待朋友,满足多样化的社交需求。
观宸架空泛会所·系列纪
CENTURY LAND OPEN FLOOR CLUB

项目名称 | 华润置地&香港置地·观宸
业主单位 | 华润置地&香港置地
项目位置 | 重庆观音桥
项目类型 | 架空泛会所
A1/A2/A3/A4/A5/B2/B3/B4/B5
设计面积 | 约3558.68㎡
完成时间 | 2025.2
设计公司 | 海力空间设计
设计范围 | 室内设计+软装设计+软装工程
金盘网APP
金盘网公众号
金盘网小程序





