贵阳当代置业MOMΛ体验中心
本项目位于贵阳城市核心交通区域,作为备受瞩目的新兴地段,体验中心在设计之初,便以打造代表型、标杆型的现代风格艺术空间为核心,试图通过建立时代环境下人与空间的关联,引领今天贵阳城市的人居美好生活风貌。
- 项目名称:贵阳当代置业MOMΛ体验中心
- 项目地点:贵州省 贵阳市 清镇市龙溪大道与花溪...
- 开发商:当代置业
- 设计参考价:¥3500/㎡
- 销售参考价:¥8000/㎡
- 项目类型:综合楼盘
- 形态:示范区
- 市场定位:刚需系
- 建成时间:2020年
- 风格:现代
- 设计面积:1000㎡
- 容积率:2.5
- 发布日期:2021-06-09
- 最近更新:2021-07-14 18:10


带着这样的启发,
如聿空间在贵阳拾光里MOMΛ体验中心中,
通过建筑语言的融合,
开启了一段以线条语言构造空间形态、以色彩规量空间尺度,
契合现代人居生活理念与审美习惯的艺术体验空间之旅。
由理性的体态、线条等设计动作引发的感性思考,
将空间的语境引导回归
至探讨空间与自然、与艺术、与人的情感关系之上。

本项目位于贵阳城市核心交通区域,作为备受瞩目的新兴地段,体验中心在设计之初,便以打造代表型、标杆型的现代风格艺术空间为核心,试图通过建立时代环境下人与空间的关联,引领今天贵阳城市的人居美好生活风貌。

延续建筑线条中“仰鹿而来”的设计元素,我们以九色鹿之形,结合中国传统坡屋面的建筑形式,转化为灵动的设计语汇,在建筑的内部打造了一个与建筑外形相呼应的一体化空间形态。

| 设计结构







“沙盘区”
/
在此基础上,我们选择了极具现代感、抽象化的彩虹水晶球体艺术装置去迎合空间的色彩关系。明丽的水晶艺术装置,高高低低垂落而下,在自然光影的折射与变换中,倾泻而下的熠熠波光,为四处浅淡色的墙面点缀了艺术的气息,也使空间的体量和层次得到丰富。



作为空间展示的核心区域,为避免人群的拥堵,设计师以洄游的动线规划,设置了两条向内行进的动线,将此处的人群合理分流:一侧导入内部的洽谈休息区,另一侧则以垂直动线的艺术步梯设置,将人群引入二层的艺术阅读与样板房展示区。









以灰白色为基调的简洁性中,加载关于色彩、关于时尚的记忆串联,不同材质、区域的色彩呼应,用以嵌套和分割不同的空间立面。明丽的黄色,优雅的蓝色,以跳跃性的关联秩序,打破了空间观感的寡淡,在一种巧妙的平衡中,形成更为艺术性、时尚感的空间风格调性。

在艺术品的甄选上,除了以极具现代艺术感的曲线形态去顺应空间的本身的调性之外,设计师还多选择趣味性、造型夸张强烈的器物装置,这些具有指向性的艺术品,以一种适宜的考量和测算,散落于空间各处,不断引导空间中的人流动线与视觉点的流转。


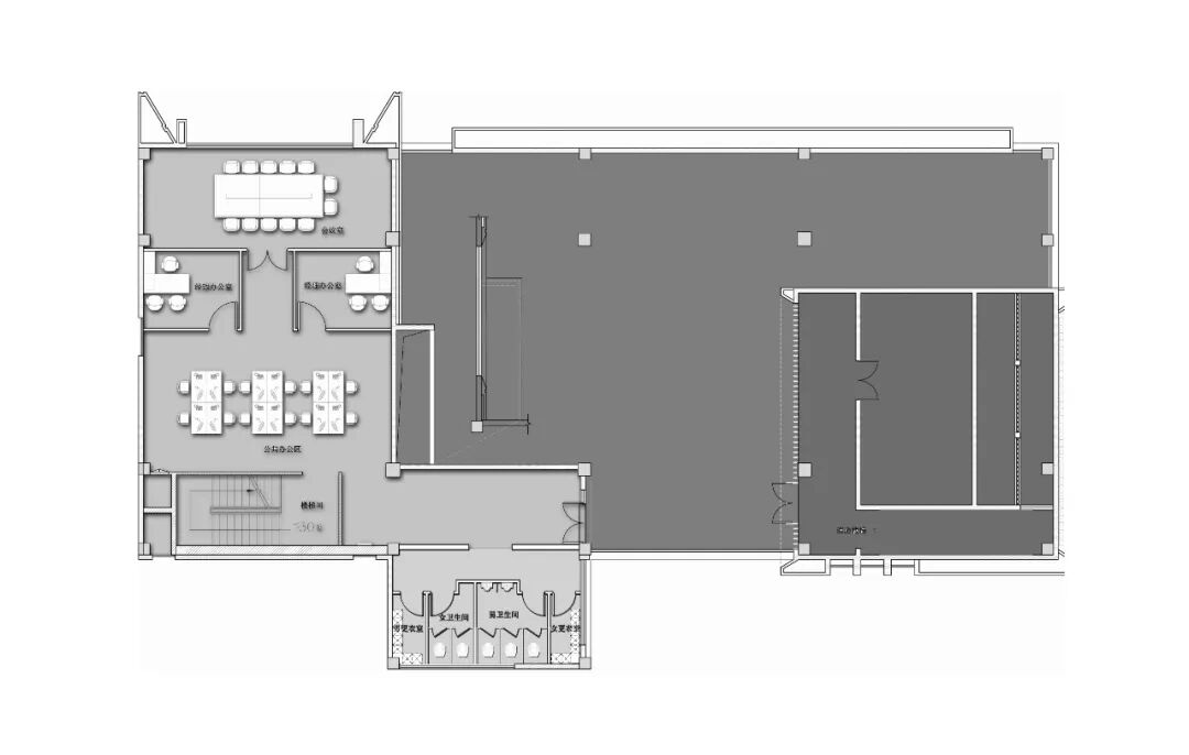
一层平面布置图

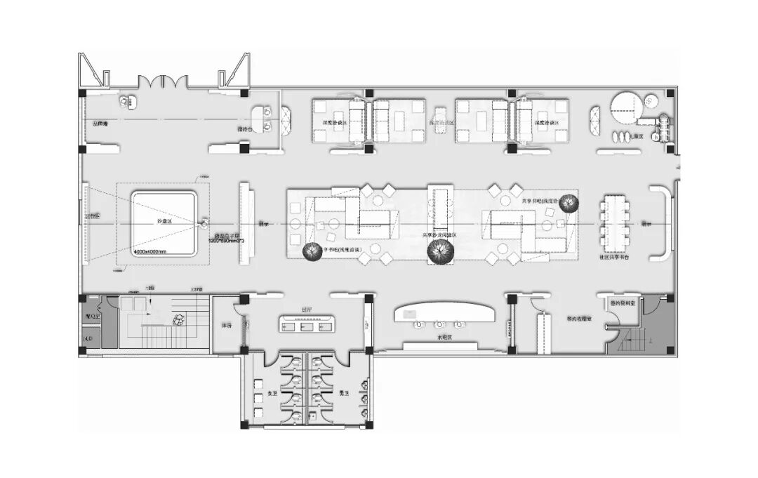
二层平面布置图

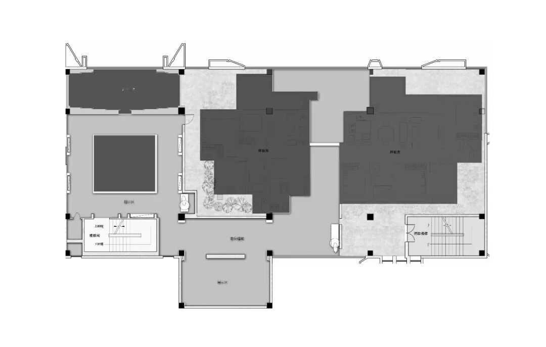
三层平面布置图
工程资料(含设计、工程、材料)
材料及其应用场景
喜鹊灰
喜鹊灰
喜鹊灰
喜鹊灰
水山白
水山白
水山白
水山白
人造冰钻
人造冰钻
人造冰钻
人造冰钻
拉丝不锈钢
拉丝不锈钢
拉丝不锈钢
拉丝不锈钢
金盘网APP
金盘网公众号
金盘网小程序


