昆明中建&金科向山的岛销售中心
元禾大千以大自然作为媒介,用设计与艺术构建一个人与自然、人与社区、人与人和谐相处的理想无忧岛。
- 项目名称:昆明中建&金科向山的岛销售中心
- 项目地点:云南省 昆明市昆明
- 开发商:金科集团,中建集团
- 设计参考价:¥3800/㎡
- 销售参考价:¥28000/㎡
- 项目类型:住宅
- 形态:示范区
- 市场定位:改善系
- 建成时间:2020年
- 风格:现代
- 设计面积:948㎡
- 容积率:2.5
- 发布日期:2021-06-28
- 最近更新:2021-07-05 14:30
中建·金科在山上建了一座 “島”

这座向山的岛,是自由的岛、艺术的岛、智慧的岛、共建的岛。
岛外,连接自然伏于山水间;岛内,共享人文体验当代生活。
有故事的岛是没有墙的美术馆。元禾大千以大自然作为媒介,用设计与艺术构建一个人与自然、人与社区、人与人和谐相处的理想无忧岛。

外我们需要一座岛,一座不在海边的岛。
构建一座与自然生长的岛屿,岛外山水环绕、候鸟飞掠、阳光普照。
Free Island
自由的岛
大地作画,我们再造山川

自然环境越空灵抽象形式越自由,设计引发的心灵激荡就越纯粹!
“你当像鸟,飞向你的山”。岛外由大千治造锻造的鲸鱼、铸造的候鸟穿梭在大自然中,让人灵魂如鸟,飞向精神原乡。


效果图

以上图片来自于美筑摄影

以上图片来自于美筑摄影




内
穿过山水,抵岸上岛。所有灵感之花在岛内绽放,在艺术与设计的凝练下,留白的纯粹与包容,赋予岛屿有限与无限的可能。


一抹绿意预示着自然、空间、人所构成的新型生态关系,成就了这座“艺术博物馆”。



白色打底,暗纹肌理背景墙,创造简单舒适的空间价值尺度。转角处一大型艺术装置如帆船般,抵达岛屿的同时开启一段探索未知之旅。


未来、科技是万物互联的时代基础。室内漂浮的微型岛屿,浓缩了城市未来业态愿景。


山即是岛,岛即是山。艺术装置以山的立体之美为灵感,为电影展厅增添一份褶皱感、立体感,用自然与艺术凝聚成岛的庇护。


被水泥森林切割和强光污染的天空灰蒙蒙的,“今夜星辰”变成一种奢望,而海岛上的天空才是纯净的天空。
我们用设计为“向山的岛”创造一片星河,空中悬挂的大型灯具,如一场流动的视觉盛宴,它源于宇宙,之于艺术,演绎摇曳的感官体验。



共建的岛,不仅是为功能而生,也是一个具有生命力、更加流动的社会舞台。
岛内或是岛外,共享空间成为城市实体,层叠、错落,绿植镶嵌,让未来的多元可能融入日常生活。


苔藓绿沙发和金属茶几,点缀在米白色地毯之上,让人暂停脚步,坐下来交谈一番。
落地窗连接接岛内外风景,即便是在城市中,依然可以共享岛屿的山水静谧,毕竟光,无处不在。


山石摆件、人形雕塑、绿植,达到超越时间、人文和语言的艺术共存,在舒适的氛围中,打开多元视角,去发现岛屿中的精彩。



设计师必须是雕塑家与画家
创造空间观感的同时
也打造立面与艺术品相映的世界


这里为孩童创造出一个粉色的童话森林岛屿,色彩碰撞激发孩子的冒险精神。一孩童骑着高大反差萌的恐龙来到岛屿深处,发掘属于自己的趣味体验。




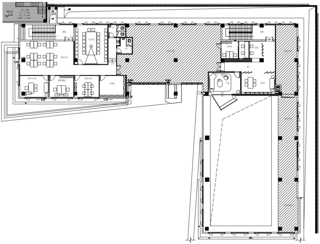
一层平面布置图

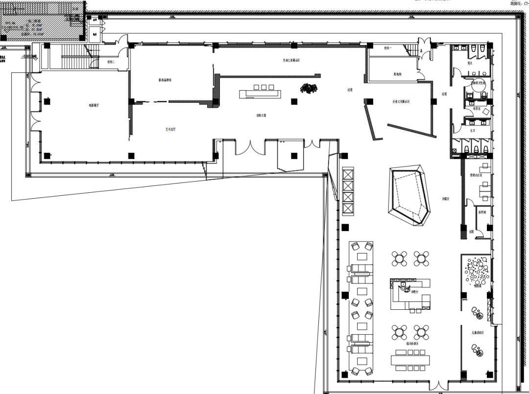
二层平面布置图
项目全名:中建&金科向山的岛销售中心
项目地址:昆明
软装设计:元禾大千
硬装设计:纳沃佩思
设计时间:2020.09
完工时间:2020.11
空间面积:948 ㎡
甲方单位:北京中建地产西南区域 金科地产云广区域
摄影团队:三棱镜

工程资料(含设计、工程、材料)
材料及其应用场景
瓷砖
瓷砖
瓷砖
厨卫五金
厨卫五金
照明灯具
照明灯具
强化木地板
强化木地板
金盘网APP
金盘网公众号
金盘网小程序





