福州保利首开天悦二期营销中心
项目位于福建福州鼓楼区,在新时代的设计语境下,东方美学的表达亦在不断衍变。与西方文艺复兴所推崇的人文主义有所不同,历经千百年传承的儒释道文化浸润的东方美学,更推崇于物我两忘、形神兼备的艺术意境。在福州这块天赐福地,SNP希望能以天悦项目为艺术载体,...
- 项目名称:福州保利首开天悦二期营销中心
- 项目地点:福建省 福州市 鼓楼区米罗街
- 开发商:保利发展,首开股份
- 设计参考价:¥5000/㎡
- 项目类型:商业
- 形态:示范区
- 设计年份:2020
- 建成时间:2020年
- 风格:现代
- 设计面积:975㎡
- 容积率:2.35
- 发布日期:2021-06-29
- 最近更新:2021-06-29 14:57






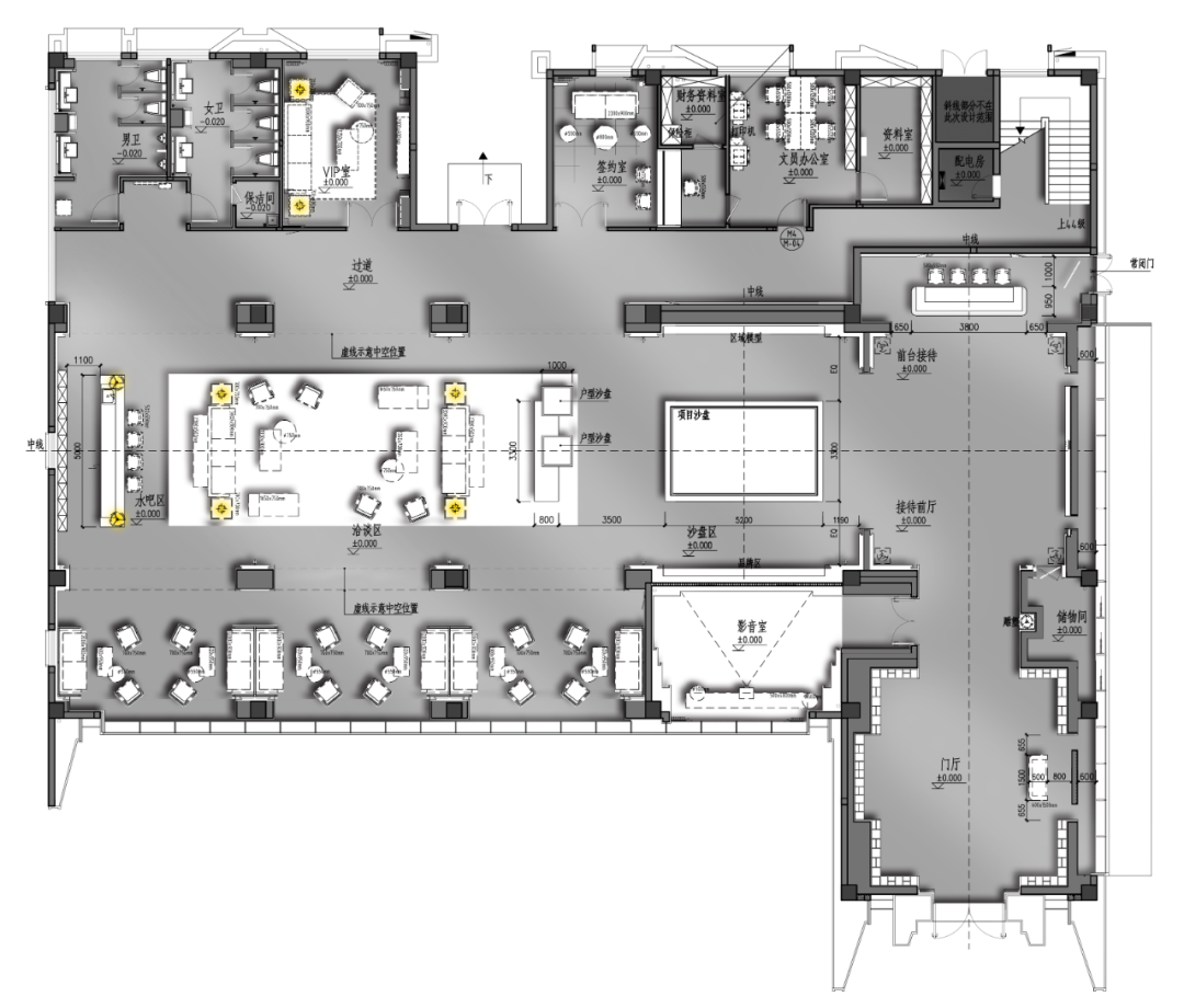
△ 售楼处平面图




古代哲学家一般认为,物我两忘的境界有三:

这三种境界,便是从“有我”到“忘我”的境界,让观者也成为场景的一部分。



沿袭东方传统美学,以方正对称的空间布局,增添中式庄重沉稳的肃穆感。在较小的建筑面积下,极简的设计手法将气韵与光线
似有似无地置于交互之间,含蓄而隽永。


行到水穷处,坐看云起时。








工程资料(含设计、工程、材料)
材料及其应用场景
高比钢材发纹青古铜钢
高比钢材发纹青古铜钢
浅灰色仿古砖
浅灰色仿古砖
金盘网APP
金盘网公众号
金盘网小程序





