南宁龙光天宸联排别墅
项目名称|龙光南宁天宸联排别墅 硬装设计|矩阵纵横 空间陈设|广州亦境设计 创意总监|陈晓熹 设计总监|徐禾末 主创团队|段静、设计一组
- 项目名称: 南宁龙光天宸联排别墅
- 项目地点:广西壮族自治区 南宁市 良庆区玉洞大...
- 开发商:龙光集团
- 设计参考价:¥3000/㎡
- 销售参考价:¥19000/㎡
- 项目类型:别墅
- 形态:示范区
- 市场定位:高端系
- 建成时间:2020年
- 风格:现代
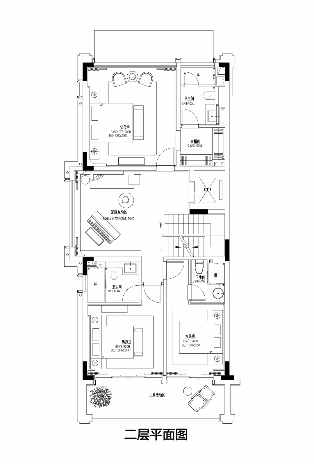
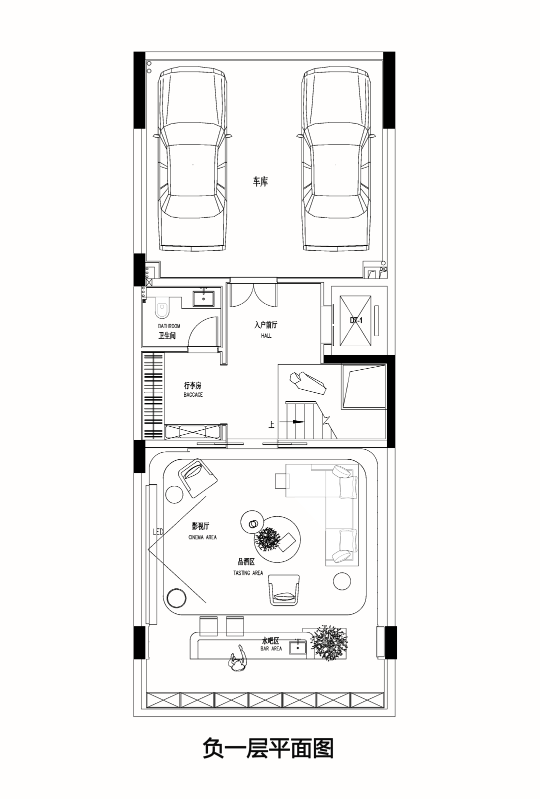
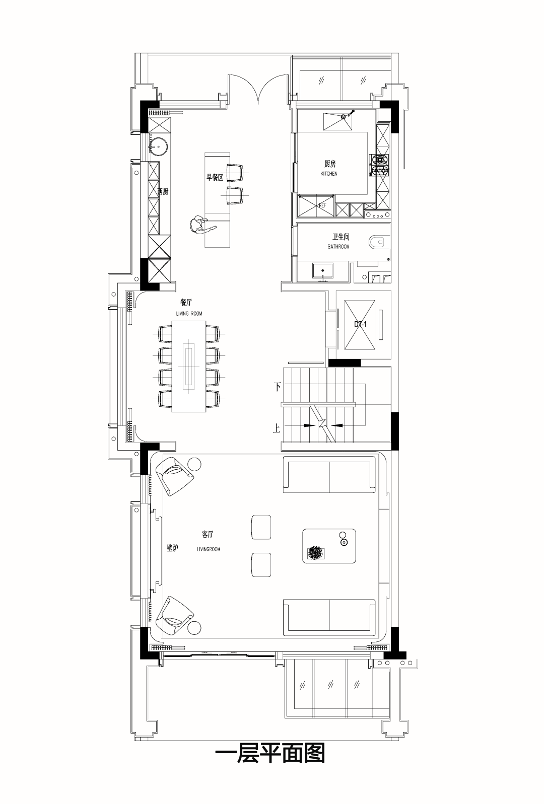
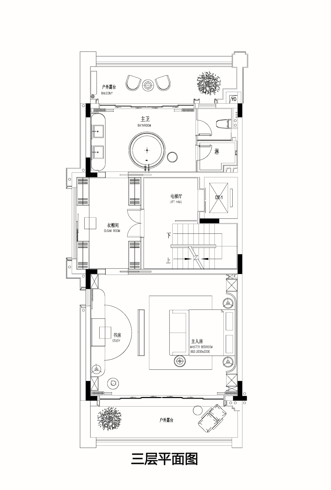
- 主力户型:联排 210㎡以上 6室及以上 4厅 5卫
- 设计面积:450㎡
- 容积率:2.5
- 发布日期:2021-07-14
- 最近更新:2021-10-27 17:43


-







-







03
Explore nature
探索自然
-
文静的女儿
活跃的儿子
有着不一样的兴趣爱好
却共同热爱探索自然
-






-




工程资料(含设计、工程、材料)
材料及其应用场景
冷翡翠大理石
冷翡翠大理石
冷翡翠大理石
冷翡翠大理石
冷翡翠大理石
黑白根大理石
黑白根大理石
黑白根大理石
黑白根大理石
黑白根大理石
梅花管
梅花管
梅花管
梅花管
梅花管
金漆玻璃装饰片
金漆玻璃装饰片
金漆玻璃装饰片
金漆玻璃装饰片
金漆玻璃装饰片
金盘网APP
金盘网公众号
金盘网小程序









