星河丹堤 · D16
山林气韵,笑谈山林,座谈山林,享一方静谧,半山之上的940㎡别墅。以得天独厚的地理位置,站立在大湾区半山封卷之作的卓越高度,皆以其稀缺的原生资源、高端建筑品质、高昂的住宅打造大湾区核心最后的半山豪宅。
- 项目名称:星河丹堤 · D16
- 项目地点:广东省 广州市 南沙区南沙
- 开发商:星河地产华南区域公司
- 设计参考价:¥1200/㎡
- 项目类型:住宅
- 形态:示范区
- 市场定位:高端系
- 建成时间:2019年
- 风格:现代
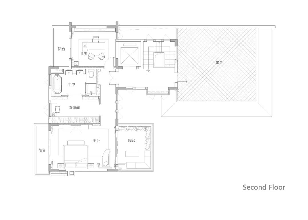
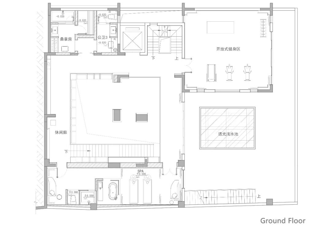
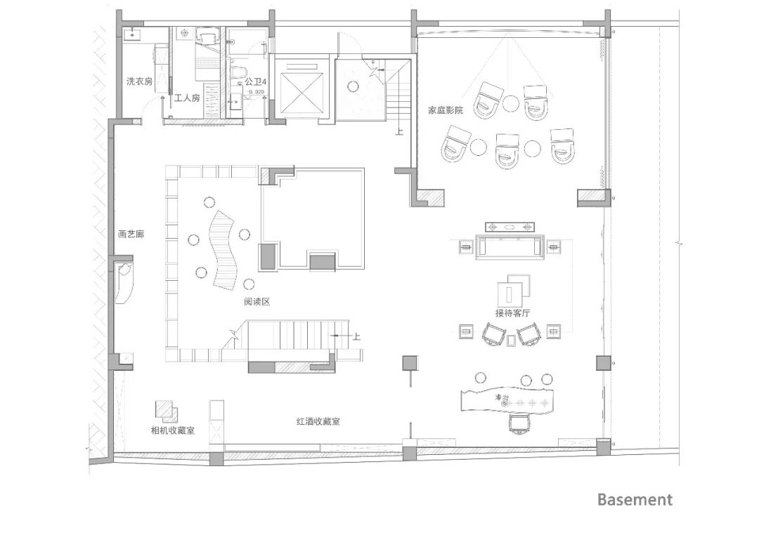
- 主力户型:独栋 210㎡以上 6室及以上 4厅 5卫
- 设计面积:940㎡
- 容积率:1
- 装修类别:精装修
- 发布日期:2022-03-24
- 最近更新:2022-03-25 17:11





初见丹堤,半隐于绿树林荫道间,如山间隐士。树木向阳伸展着枝叶,带着原生的自由气息,建筑在其中显得格外谦逊。












“生命中总有不期而遇 细水长流的爱情
似水般的柔情 裹挟着浓浓爱意
如涟漪般荡漾铺陈开来
将一份份对爱的渴望与挂怀
紧密相连”






















金盘网APP
金盘网公众号
金盘网小程序



