天水天庆听泉小镇销售中心
项目以临时内建筑的方式,建立于市中心商业综合体中庭,出于对成本与市区流量的一次策略性试验,故以基础的环形几何体,构建空间内建筑的背景场地,尽量扩大的环形围度,以便最大限度地利用空间,并更流畅地串联各功能空间,营造一个市中心人流活动停留地,同时传达到...
- 项目名称:天水天庆听泉小镇销售中心
- 项目地点:甘肃省 天水市天水
- 开发商:甘肃天庆房地产集团有限公司
- 设计参考价:¥2600/㎡
- 销售参考价:¥8200/㎡
- 项目类型:综合楼盘
- 形态:示范区
- 市场定位:改善系
- 设计年份:2021.06
- 建成时间:2021年
- 风格:现代
- 主力户型:高层 平层 90-120㎡ 3室 1厅 2卫
- 设计面积:800㎡
- 容积率:2.75
- 发布日期:2022-04-28
- 最近更新:2022-05-13 12:13

项目以临时内建筑的方式,建立于市中心商业综合体中庭,出于对成本与市区流量的一次策略性试验,故以基础的环形几何体,构建空间内建筑的背景场地,尽量扩大的环形围度,以便最大限度地利用空间,并更流畅地串联各功能空间,营造一个市中心人流活动停留地,同时传达到商业营销的效果。
时间 · 空间

流动的时钟 · 达利美术馆
一个圆为360°,古巴比伦人在观察太阳从地平线升起时,大约每4分钟移动一个位置,一天24小时,太阳就移动了360个位置,所以规定一个圆内角为360°。这个°,代表着太阳。

空间布局欲扬先抑,正心圆与不同形状的矩形元素组合,有效衔接不同方向的功能。挺拔的柱子划分高低之间中庭与联廊空间,敞开与收缩之间,引导了空间的主次动线,让在场者感受到由空间的变化,所带来的感观变化。

设计师采用6条同心轴线,将大厅天面分为12份,代表古今人们计算昼夜变化12时辰,蓝色视窗代表流动的指针,指引着人与时间、人与空间的对话。





“大道至简”
重复叠加的订制“三角砖”,提练线与面的形式,搭建空间整体与局部的连接。“stucco lucido-高光抹灰”的营造手法,可塑性强,技术施展自由度高,为整个设计的实现提速,同时节约了成本损耗。将凹与凸的表显方式设计物化,明见物象,源自于卡洛.斯卡帕的建构手法。






色彩的搭配展现着现代空间个性表情,高级灰是年轻个性、独立且富有生机的存在,空间大面积选择这个高级感配色,赋予了其柔和舒缓的宁静之感。





水 形

涟漪素材
项目名称为“听泉小镇”,出自于客户收藏的傅抱石《听泉图》。设计师将泉——水——水滴——涟漪的一个动态联想融入空间设计中,以倒锥型勾勒出水滴的姿态,以光影渲染出涟漪的优雅。跌落地面泛起涟漪,以向心圆阵阵地扩充空间型态中。


涟漪简化为“圆”的元素。一圈一圈的弧线是以同心圆向外扩充形态构建不同层次维度,简单的几何体在每个圆圈维度中展示着其独特的意识形态,又与后场空间相辅相成,透出设计的艺术美感。




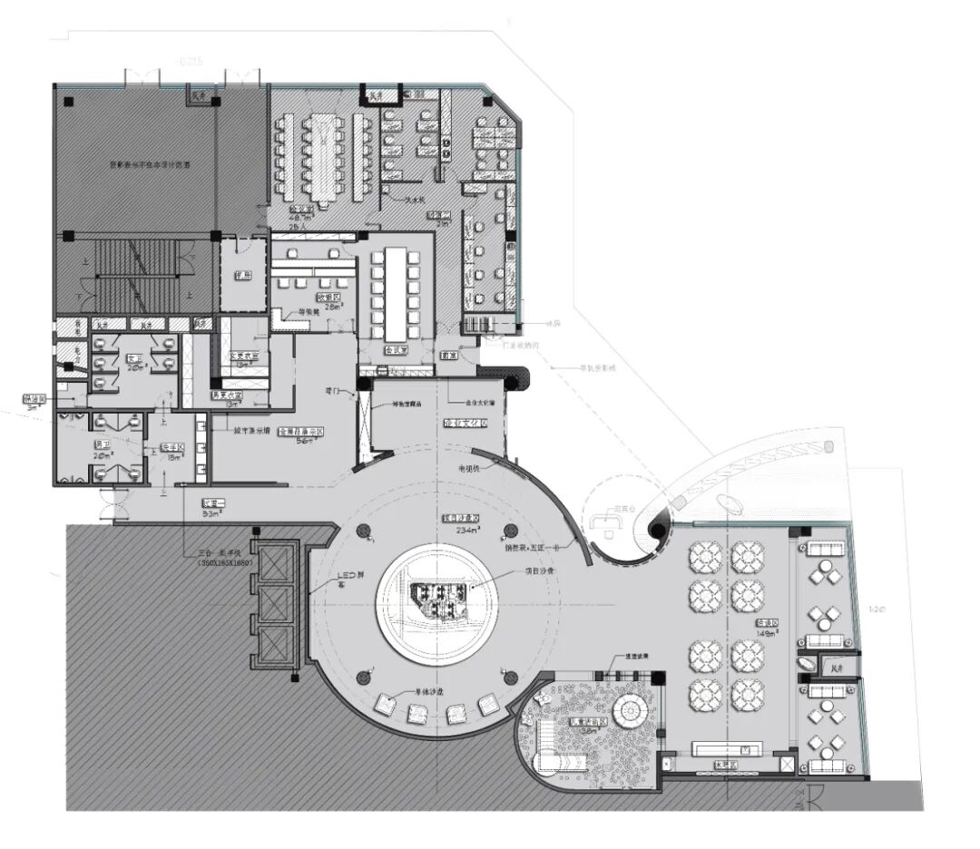
平 面 图
工程资料(含设计、工程、材料)
材料及其应用场景
老根木山
老根木山
老根木山
老根木山
纹材8352-4
纹材8352-4
纹材8352-4
纹材8352-4
拉丝黑钢
拉丝黑钢
拉丝黑钢
拉丝黑钢
所罗门白
所罗门白
所罗门白
所罗门白
金盘网APP
金盘网公众号
金盘网小程序





