广州国际港航中心办公会所样板间
港航中心Loft江景公寓样板房落址于“广州之芯”的黄埔临港经济区,此区被定为下一个珠江新城,是临港商务、航运、金融、滨海住宅等国际高端产业聚集地。因应区位背景优势,项目定位为高阶人群量身定做的“私人空间”。 室内4.5米挑高,配上全透玻璃落地窗,打造出...
- 项目名称:广州国际港航中心办公会所样板间
- 项目地点:广东省 广州市黄埔大道东983号
- 开发商:广州海港明珠实业投资有限公司
- 设计参考价:¥2500/㎡
- 销售参考价:¥37000/㎡
- 项目类型:公寓
- 形态:示范区
- 建成时间:2021年
- 风格:中式
- 主力户型:高层 复式 120-144㎡ 3室 2厅 2卫
- 设计面积:136㎡
- 容积率:8
- 装修类别:毛坯
- 发布日期:2022-05-30
- 最近更新:2022-06-08 14:58
一 轻,
二 慢,
三 雅。
——谁最中国《喝的不是茶》

港航中心Loft江景公寓样板房落址于“广州之芯”的黄埔临港经济区,此区被定为下一个珠江新城,是临港商务、航运、金融、滨海住宅等国际高端产业聚集地。因应区位背景优势,项目定位为高阶人群量身定做的“私人空间”。
室内4.5米挑高,配上全透玻璃落地窗,打造出270°天幕视野,珠江两岸的繁华景色一览无余。闲暇时,续一杯清茶,晒晒太阳或听听雨,看看江水,好景为伴,轻轻盈盈的惬意生活便是如此吧!


窗外实景图
闲来知茶,静享岁月;一壶热泉,三四杯盏。
木、石、铁、茶、水,涵盖自然五行,陈列东方儒家的宽厚礼序。
设计师透过对项目定位、生活哲学及居住人群情感心理的充分考虑,激活空间灵魂。在设计师的笔下,将喝茶文化精髓注入,与创意设计深度融合,塑造出一种“慢”空间。这种自然而然的“慢”,慢慢渗透到身心里,抚平都市快节奏所带来的“燥”。



意向图
从踏入公寓的一刻,便能感受到空间的宽敞气派。双厅相连设计,动线清晰且功能完善。“办公+居住”的公寓模式,是现社会中公寓设计的新趋势,也是我们当下主力研究的设计课题之一。取舍,摒弃,破立,用前卫的想法打造新的办公模式。在这有限空间中,办公区,会客区,私享区域合理排布,将生活方式、办公模式、艺术美学与空间哲学高度交叠融合,呈现一个结构立体、层次丰富的多变空间。

空间布局图
270°落地玻璃窗,为室内提供了充足的自然光,原木色的设计穿插在黑白灰的世界里,光影游走间虚实相生,别有一番趣味。会客室、厨房、餐厅采用开放式设计,最大限度地敞开建筑空间尺度,室内与室外景观互相碰撞。在自由与开放的交互中营造出一种轻松惬意的工作生活氛围。


柱身采用水墨淡彩山文硬包设计,与挂帘的山岚缭绕相呼应,为空间平添几分雅致的禅意。阳光不刻意地悄然而入,让空间增添了一丝质朴无暇的魅力。恰到好处的绿植点缀,勾勒出这一刻的岁月静好。



简约的线条,低调的色彩、静谧的氛围作为设计的核心,梳理了办公与居住的功能关系。
办公中光与景,生活中人与家,一墙相隔,相映成趣。留存于心的情感与时光,在这镜像之间,更显珍贵。



无主灯设计让空间更加低调,更融于山色之中,也让自然的东西不被人为的东西掩盖了。

就餐区与厨房无间隔设计,打破空间界限,打造联动式生活场景。

在这方寸设计中,一箪食一瓢饮,令脚步与心律,都会不自觉变慢下来,如喝茶般,不紧不慢,方知其味,方感其意。



喝茶,不单单只是表面的喝口茶,它还隐含一种特别的仪式感,是一种沉浸式的体验,还是深入生活的雅。茶室的设计便遵循着这个“雅”铺开陈设,器皿、挂画、插花等等,跳脱出日常的柴米油盐,滋养人的生活美感。


“斯是陋室,惟吾德馨 ”回归自然的生活,一抹绿植就有厚积薄发的力量。





书房退却了喧嚣,舍弃了现代的浮躁之气,给人一种宁静的感觉。这里浓缩了主人公的精神世界,静坐书房,一墨、一砚、一纸、一笔中享生活的清净、悠闲,不亦乐乎。



门外是人间烟火,门内是闲逸雅致。一方茶席二三茶具,与枯松小品映衬,滤尽俗物,留驻诗意,渲染出当代东方艺术场景。




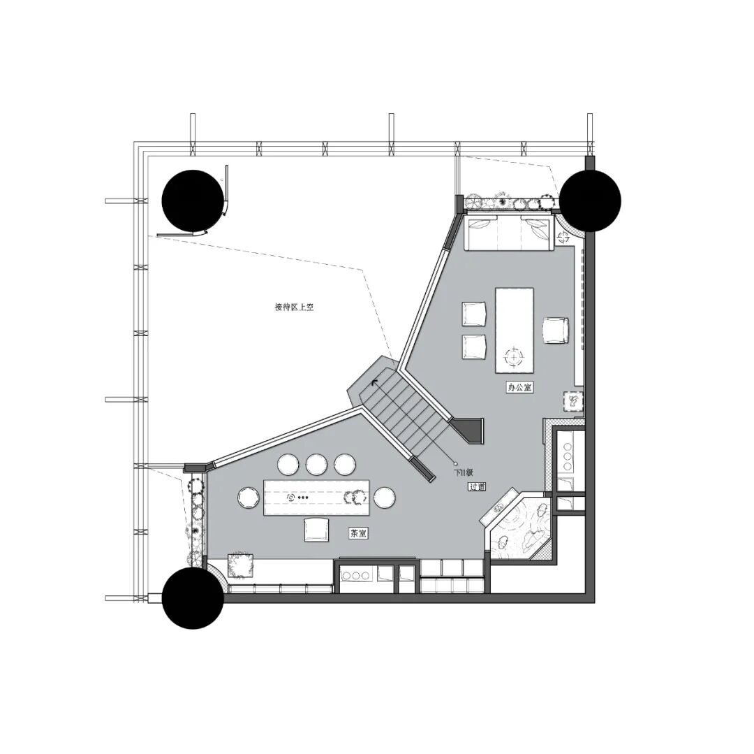
一层平面图

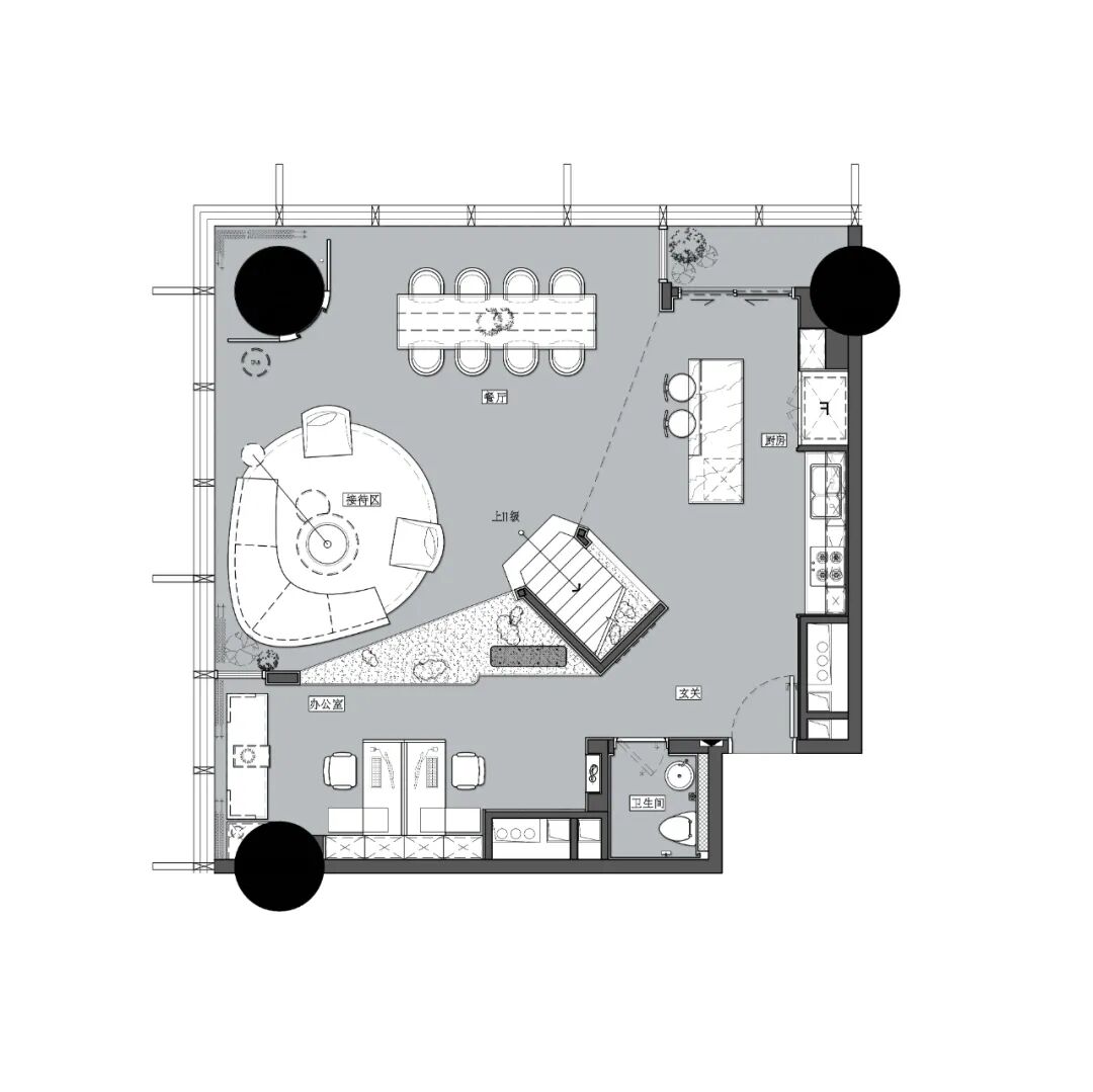
二层平面图
工程资料(含设计、工程、材料)
材料及其应用场景
木饰面
木饰面
木饰面
木饰面
黑色大理石
黑色大理石
黑色大理石
黑色大理石
树脂玻璃
树脂玻璃
树脂玻璃
树脂玻璃
瓷砖
瓷砖
瓷砖
瓷砖
金盘网APP
金盘网公众号
金盘网小程序





