靖江 龙信 龙馨园下叠样板间
空间设计,在生活与创意之间,寻找精妙的连接
- 项目名称:靖江 龙信 龙馨园下叠样板间
- 项目地点:江苏省 泰州市 靖江市
- 开发商:龙信地产
- 设计参考价:¥1500/㎡
- 销售参考价:¥30000/㎡
- 项目类型:住宅
- 形态:示范区
- 市场定位:改善系
- 建成时间:2022年
- 风格:现代
- 主力户型:叠拼 180-210㎡ 4室 2厅 2卫
- 设计面积:207㎡
- 容积率:2.5
- 发布日期:2022-07-18
- 最近更新:2024-07-23 17:27
诗意现实主义
空间设计
在生活与创意之间
寻找精妙的连接

突如其来的疫情放慢了生活的步伐,于是我们有了更充裕的时间陪伴家人。当“宅”成为了一种健康的生活方式,居住空间也需要被重新定义。
地下室 I 欢聚时光

负一层的空间,更多的是沉淀自我,享受生活所在。利用情境氛围的渲染,营造一个多层次互动式感知体验的空间,将城市的冰冷感和喧嚣隔离在建筑之外,赋予居者更美好的生活愿景。



茶室和酒窖秉承了当代设计,自由个性的设计出发点,它要在传统和现代之间在功能与梦想之间取得平衡。


客厅 I 品质生活

一层客厅依然带有奢华的风骨,并在传统与现代间折射出雅致随性的平衡,为有限的空间注入更多生活内容和想象的价值。



客餐厅是整套户型灵魂所在,客餐厅的开放自由、餐厨间的无缝衔接,别于传统居住概念的生活居所,让一家人可以在频繁的互动中强化情感纽带,不仅承载着休闲、娱乐、社交等功能,也传达出主人的品味和个性,软装设计以浓郁的优雅绅士情调,体现都市新贵的社交性格。

书房 I 收藏志趣


收藏活动,注定了收藏者的体力劳动与脑力劳动的长期结合的双赢受益 。

书房是一个人能享有灵魂放松和恬静工作的空间,艺术表达具有沉淀思维的哲学内涵。硬朗的线条,汽车的收藏,无不体现出男主人对品质的追求。


主卧 I 从容优雅

主卧在大地色的基础上,搭配了高雅的琥珀色,尊贵,优雅的基础上,增添了一分明朗,一分生命力。

在房间的配饰上,运用了丝绸、皮草、皮革、金属,小面积的装饰点缀,凸显细节,同时增加了质感和层次,恰到好处的精致。

女孩房 I 暖融清隽

温柔清雅,色调与纹样逐渐缓和,两者间便形成了沉稳包容前卫的和谐感。营造出其不意的轻松气氛,覆以空间丰富的想象力。从各处洒进的光,暖融清隽,漫出少女情调。

男孩房 I 多元潮流

男孩房以篮球作为主题,用时尚潮流映照生活温度。房间中随意安放备受宠爱的创意摆件,凸显小男主人敏锐的时代审美,多元的探索精神。

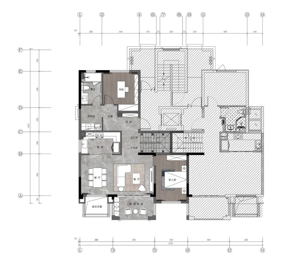
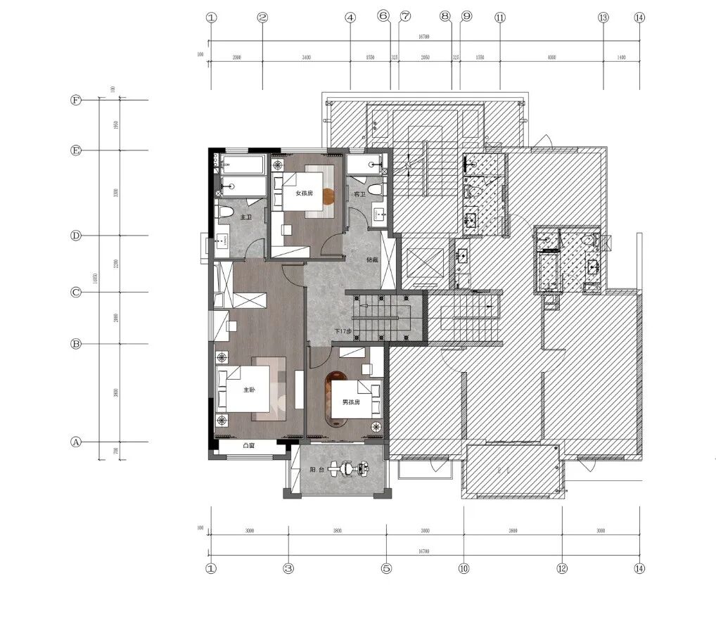
平面图
Layout plan

▲ 负一层平面图

▲ 一层平面图

▲ 二层平面图
工程资料(含设计、工程、材料)
材料及其应用场景
石材
石材
石材
石材
木饰面
木饰面
木饰面
木饰面
皮革
皮革
皮革
皮革
金盘网APP
金盘网公众号
金盘网小程序





