成都·中铁建·西派浣花63
西派浣花63作为西派系旗下首个高端公寓,建筑立面以超现代主义风格,采用钻石光感的玻璃幕墙设计,产品打造120-370㎡带装修大平层。项目集西派系十年之大成,以考究的产品力、更具格调的空间场景、更尊崇的人文体验,用全新序列丰富西派系内涵,开拓城市高阶人居新版...
- 项目名称:成都·中铁建·西派浣花63
- 项目地点:四川省 成都市 青羊区青羊草堂清江东...
- 开发商:中国铁建
- 设计参考价:¥39/㎡
- 销售参考价:¥22000/㎡
- 项目类型:公寓
- 形态:大区
- 建成时间:2021年
- 风格:现代
- 主力户型:高层 平层 144-180㎡ 3室 2厅 2卫
- 占地面积:10832.58㎡
- 建筑面积: 81181.9㎡
- 设计面积:81181.9㎡
- 容积率:6
- 装修类别:精装修
- 发布日期:2022-07-18
- 最近更新:2022-10-19 18:30

中铁建·西派浣花63
四川·成都
“天地与我并生,而万物与我为一”。建筑与艺术融合,大胆运用超现代主义国际建质的钻石光感立面,横向线条结合弧线肌理,接轨国际前沿审美同时,令西派浣花63“自然生长”于浣花溪之上,生活与自然无界融合,挥就浣花璀璨艺术地标。

项目背景
PROJECT BACKGROUND





整体规划
OVERALL PLAN
项目整体呈半开敞式布局,商业配套广场向城市打开,办公功能则相对围合,利于办公入口的打造并实现将办公人流与商业人流分区设置。

设计思路
DESIGN IDEAS
#以点构面,渗透建筑美学

立面设计
BUILDING EXTERIOR
#立面与线条



西派浣花63
实景图 ©华西设计





景观艺术
LANDSCAPE ART
秉承人与自然共存、城市与自然共生的理念,淬炼蜀锦、竹编等成都文化元素,以现代风格为表,文化底蕴为魂,一阶一景以殿堂级艺术造诣为标准,打造独一无二的内外三重景观体系,重塑浣花的居住艺术。

公寓实景
APARTMENT PHOTOS
项目延续西派系固有的“典雅、庄重、内敛”,实现生活与国际时尚艺术的共融。



技术图纸
TECHNICAL DRAWINGS

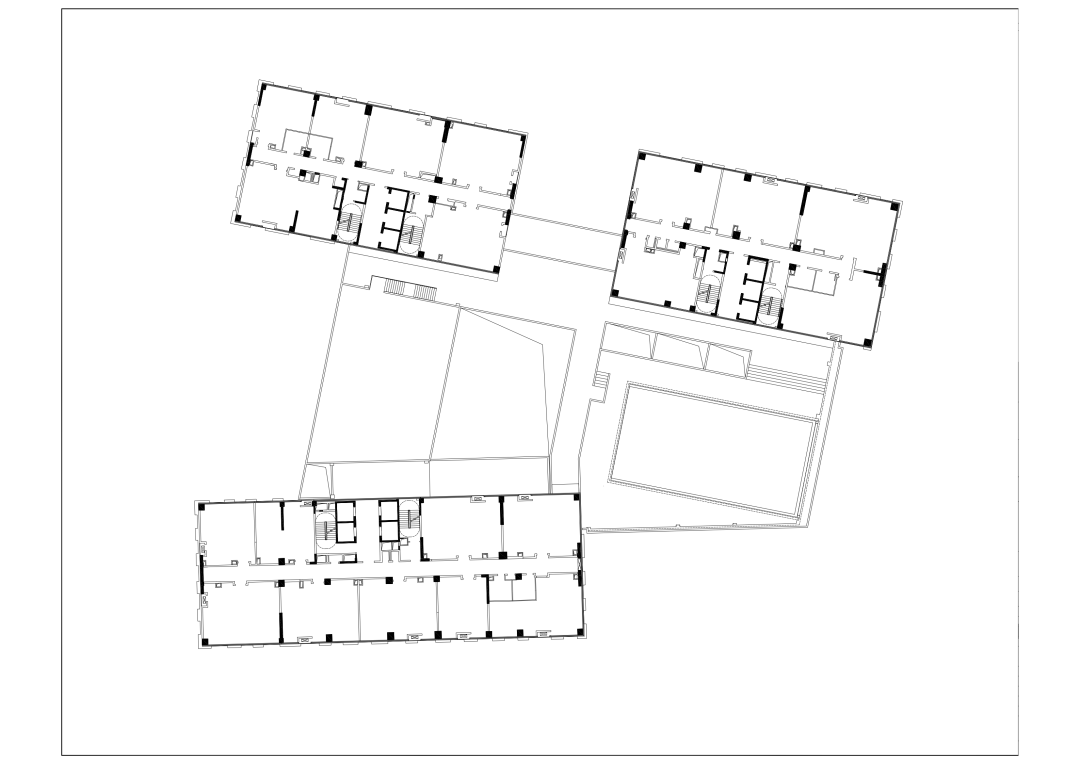
总平图

一层组合平面图

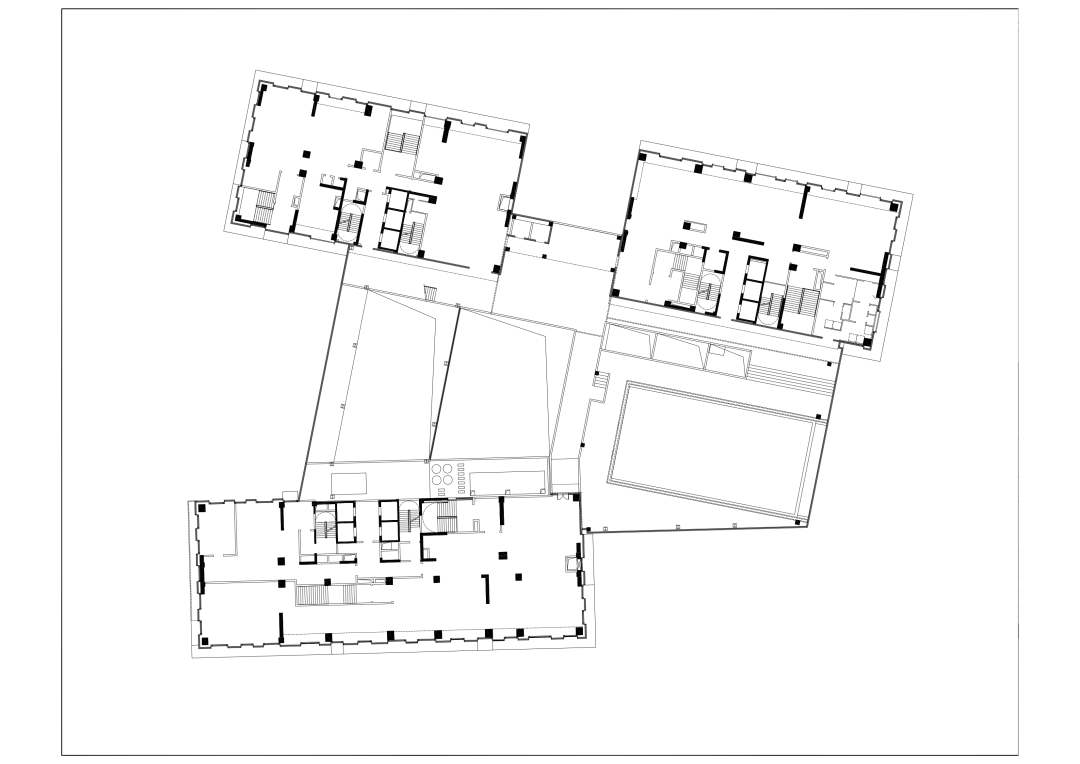
二层组合平面图

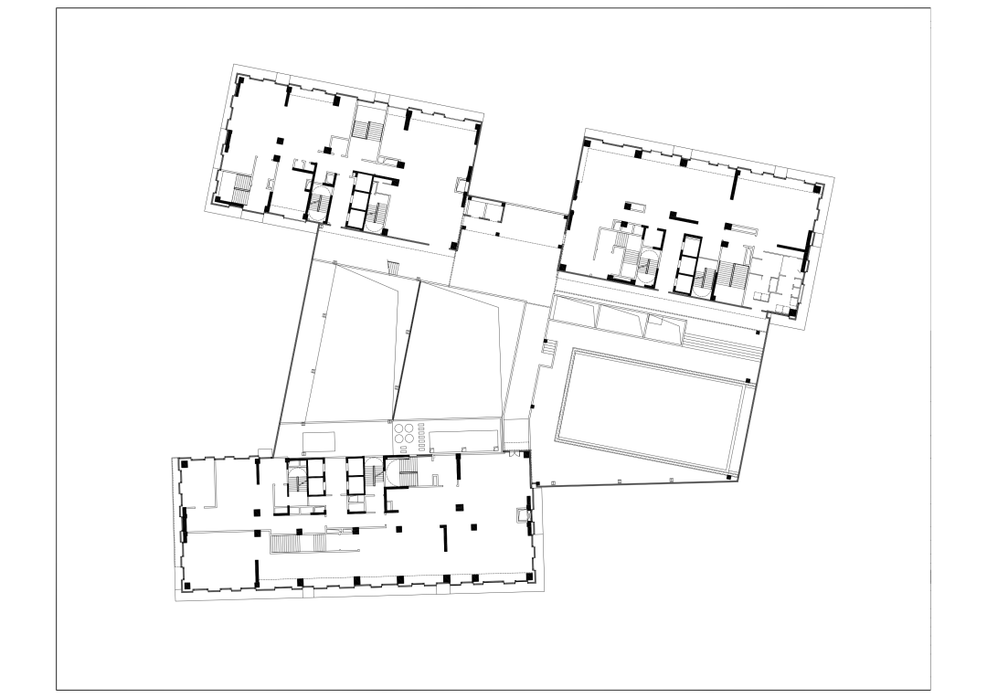
三层组合平面图

1号楼北立面图

1号楼西立面图



工程资料(含设计、工程、材料)
材料及其应用场景
瓷砖-亚马逊绿
瓷砖-亚马逊绿
瓷砖-亚马逊绿
瓷砖-亚马逊绿
“60%天鹅绒灰”玻璃酒柜面板
“60%天鹅绒灰”玻璃酒柜面板
“60%天鹅绒灰”玻璃酒柜面板
“60%天鹅绒灰”玻璃酒柜面板
LOW-E玻璃
LOW-E玻璃
LOW-E玻璃
LOW-E玻璃
金属板
金属板
金属板
金属板
金盘网APP
金盘网公众号
金盘网小程序



