沈阳金地九阙台售楼处
本次售楼处项目接待背景以东方屏风形式呈现,背景的古建画卷有节制的印刻在空间屏风中,来丰富整个空间东方文化感受。设计为了寻找空间本质,避免繁琐的造型,选取纹理蜿蜒的大理石为空间主材,配以金属定下室内氛围的基调,自然的肌理、简洁的色彩,在有序中追求无序...
服务范围:建筑设计
设计参考价: 元/平方米- 项目名称:沈阳金地九阙台售楼处
- 项目地点:辽宁省 沈阳市 皇姑区舍利塔公园旁
- 开发商:金地集团沈阳公司
- 设计参考价:¥/㎡
- 销售参考价:¥19000/㎡
- 项目类型:综合楼盘
- 形态:示范区
- 市场定位:高端系
- 建成时间:2022年
- 风格:现代
- 占地面积:1262㎡
- 建筑面积: 4289㎡
- 容积率:1.8
- 发布日期:2022-08-26
- 最近更新:2022-08-26 13:20
LISTEN
听雨·入境

"一湾塔影水流春,
寒食烟生树树新,
疑是雨余青到眼,
十三山色欲留人"

千年古都的沈阳,又称盛京,历史悠久的皇都行宫,拥有显著尊贵的皇家风范,素有 “一朝发祥地,两代帝王都”之称 。时空斗转,空间转换,不变的是文化特色于传承。海纳百川,讲东方人文精神化为空间诗意。本设计产品以“京派”设计语言,讲建筑与室内统筹一体化,反哺归真,延续传统隐逸东方气质感受。为自然延申打破边界...
SHENYANG, IS ALSO KNOWN AS SHENGJING, THE IMPERIAL CAPITAL PALACE WITH A LONG HISTORY. IT HAS A REMARKABLE ROYAL STYLE AND IS KNOWN AS "THE BIRTHPLACE OF ONE DYNASTY AND THE CAPITAL OF TWO GENERATIONS OF EMPERORS". WHAT REMAINS UNCHANGED IS THE INHERITANCE OF CULTURAL CHARACTERISTICS. THE SEA EMBRACES ALL RIVERS, AND THE ORIENTAL HUMANISTIC SPIRIT IS TRANSFORMED INTO SPACE POETRY.
RETACING
溯洄·东方

“东方,或隐或现,
不仅存在于过往历史之中,
亦在当下的诗意生活里滋长”


本次售楼处项目接待背景以东方屏风形式呈现,背景的古建画卷有节制的印刻在空间屏风中,来丰富整个空间东方文化感受。设计为了寻找空间本质,避免繁琐的造型,选取纹理蜿蜒的大理石为空间主材,配以金属定下室内氛围的基调,自然的肌理、简洁的色彩,在有序中追求无序,释放空间的无限可能。接待台以简洁的水墨玉石材和两侧的山水岩板相互呼应,赋予空间深厚的文化意义。天花木饰面抽槽有序叠进,增加空间细节,温润了一方水土,呈现出一番沉浸式的场景。
THE RECEPTION BACKGROUND OF THE SALES OFFICE PROJECT IS PRESENTED IN THE FORM OF AN ORIENTAL SCREEN, AND THE ANCIENT ARCHITECTURE PICTURES OF THE BACKGROUND ARE MODESTLY PRINTED ON THE SPACE SCREEN TO ENRICH THE ORIENTAL CULTURE EXPERIENCE OF THE WHOLE SPACE.


△剖面

△爆炸图
SYMMETRIES
序列·对称

“林影花間,
時光幻映,
自然张弛有度,
万象枯荣有序"

沙盘区和洽谈区以对称的格局营造出强烈的仪式感以及四个片墙所围合空间的围合感,同时也企图唤醒人们对东方文化的敬畏感。依据建筑结构和木格栅工艺来达到室内的屋檐室内随行,空间垂壁元素通过剪纸工艺的变化来做到镂空艺术。
THE SAND TABLE AREA AND THE NEGOTIATION AREA CREATE A STRONG SENSE OF RITUAL AND THE SENSE OF ENCLOSURE OF THE SPACE ENCLOSED BY THE FOUR WALLS IN A SYMMETRICAL PATTERN. AT THE SAME TIME, THEY ALSO TRY TO AROUSE PEOPLE'S SENSE OF AWE FOR THE ORIENTAL CULTURE.

△现场制作
RETACING
游·溯回东方

见青山隐隐、日光温柔
仿佛穿越时空的门洞
步入了幽深的庭院

设计灵感呼应着景观的主题,万福之源,提取了建筑的弧形四坡顶的弧形造型,与空间中心流动的屋檐呼应,形成一种有温暖的光线折射,带来丰富的光影变化,在空间之中通过形态的抽象,材料的解构,进行交叠、重组。同时我们提取塔的弧形线条进行重组,来形成我们室内的元素,将东方、文化、感官,以东方美学传承空间,以地域文化营造空间气度,以品、归、论、观、致,演绎情感体验 。
THE DESIGN INSPIRATION ECHOES THE THEME OF THE LANDSCAPE AND THE SOURCE OF ALL BLESSINGS. IT EXTRACTS THE ARC SHAPE OF THE BUILDING'S ARC FOUR SLOPE TOP AND ECHOES WITH THE EAVES FLOWING IN THE SPACE CENTER TO FORM A WARM LIGHT REFRACTION AND BRING RICH LIGHT AND SHADOW CHANGES.



ORDER TEA
品茗·煎茶

嫩芽香且灵,吾谓草中英。
夜臼和烟捣,寒炉对雪烹。
惟忧碧粉散,尝见绿花生。


东方不是“仿古”,而是着眼于古今的融合、相接,回归生活的本质与纯美。家具凝聚着现代神韵、诗意的诠释以及精雕细刻的追求,其温润的材质、面料的色彩与室外景观交融,共同编织可以触摸的时光记忆。空间布局顺着禅、茶、乐、水、香、花、戏的场景逻辑,缓缓铺叙清悠婉转、余韵悠长的格调。亦动亦静的动线,可行可停的逻辑,如戏剧般起承转合的丰富体验,共同烘托出空间触动来访者共鸣的艺术张力茶台、被水墨染过的地毯,所见之处是东方元素的对话,它们共同向人们诉说着关于沈阳的、悠远流长的故事。
FURNITURE EMBODIES MODERN CHARM, POETIC INTERPRETATION AND EXQUISITE PURSUIT. ITS WARM MATERIALS, FABRIC COLORS AND OUTDOOR LANDSCAPE BLEND TOGETHER TO WEAVE TOUCHABLE TIME MEMORIES. THE TEA TABLE AND THE CARPETS DYED WITH INK ARE THE DIALOGUE OF ORIENTAL ELEMENTS. THEY TELL PEOPLE A LONG STORY ABOUT SHENYANG.

△剖面分析
VITALITY
生机·自然

山水雾气萦绕山间
盈盈碧波摇曳
青山隐隐,乘云欲归
或近,或远,或隐,或显



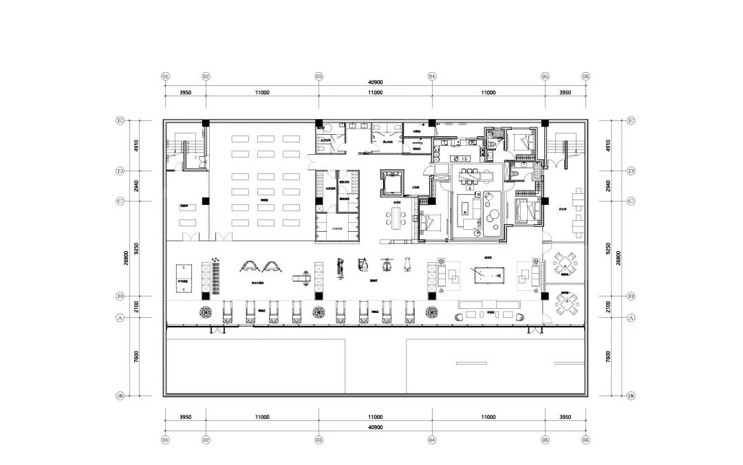
负二层为娱乐会所,负一层与负二层南侧均为落地玻璃,巧妙地将自然光线与下沉景观引入到负二层的会所空间,将健身器材沿着落地玻璃放置,透过玻璃,创造出奇妙的戏剧性空间及不一样的光感体验。同时旁边放置开阔的茶歇空间,透过开阔的落地窗,窗外的水景、树、云、光,成为室内最为灵动的设计元素,给人一种“花影移墙,峰峦当窗,宛然若画,静中生趣。”的自然体验。
THE LOWER SECOND FLOOR IS THE ENTERTAINMENT CLUB. THE SOUTH SIDES OF THE LOWER FIRST FLOOR AND THE LOWER SECOND FLOOR ARE FLOOR GLASS. NATURAL LIGHT AND SUNKEN LANDSCAPE ARE SKILLFULLY INTRODUCED INTO THE CLUB SPACE ON THE LOWER SECOND FLOOR. FITNESS EQUIPMENT IS PLACED ALONG THE FLOOR GLASS. THROUGH THE GLASS, WONDERFUL DRAMATIC SPACE AND DIFFERENT LIGHT FEELING EXPERIENCE ARE CREATED.





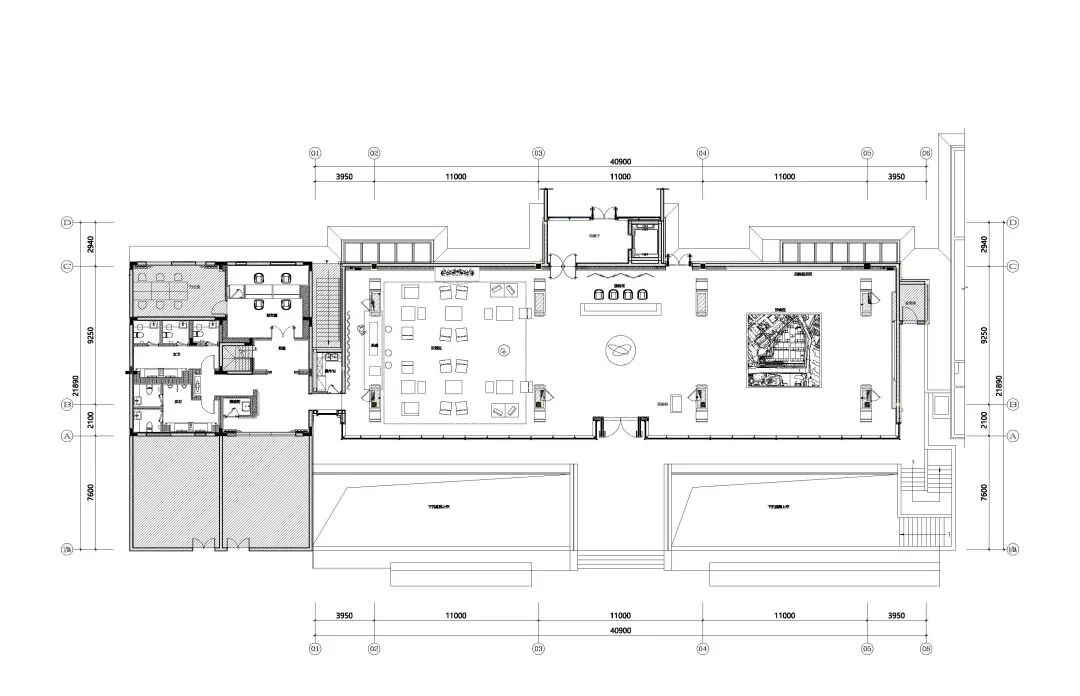
1F平面布置

-2F平面布置
金盘网APP
金盘网公众号
金盘网小程序



