苏州·绿地·常熟翡丽云庭售楼处
从当地文化记忆中提取元素特征,借以光影艺术与体块穿插的设计手法,用空间的纯粹性反衬精神的充沛,用极少主义的节制冷静来实现一个柔和中富有张力的空间。
- 项目名称:苏州·绿地·常熟翡丽云庭售楼处
- 项目地点:江苏省 扬州市虞山镇城铁片区泰山北...
- 开发商:绿地集团
- 销售参考价:¥16500/㎡
- 项目类型:住宅
- 形态:示范区
- 市场定位:改善系
- 建成时间:2021年
- 风格:现代
- 主力户型:高层 平层 90-120㎡ 3室 2厅 2卫
- 占地面积:49106㎡
- 建筑面积: 93301.4㎡
- 容积率:1.9
- 发布日期:2022-08-23
- 最近更新:2022-09-19 20:20
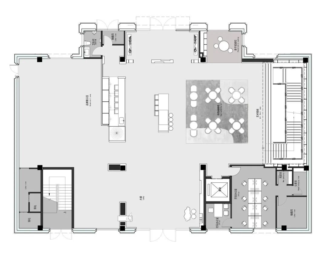
——爱因斯坦《相对论》 万物皆有裂痕,那一定是光照进来的地方。从黎明破晓前到黄昏时刻,沉淀出来的光影通过一扇扇窗,层层递进、消融于整个空间。延续、变化,所有的情景节点伴随着光影变幻、融合。空间的气质如轻盈的风般,温润了所有的景致。 灵感源于建筑大师路易·康的建筑作品中的处理手法,以简单几何作为空间构图的“元”。这不只是一处纯粹的功能空间,这还是一座城市艺术馆。打破建筑与室内的原本面貌,分解、叠加、重构,回塑空间纯粹本源。 大堂利用折叠与穿插,将原有空间打碎,重组,再生,利用空间的穿插组合,原有的视界不再扁平,打造出丰富的参观层次和立体的空间体验。品牌展示区,现代而不失格调,无赘饰却留下无限遐想。通透的视觉空间在入口展现出无限延伸的感受。 设计上的形式语言,趋于干净简单,一种几何体量关系的单纯化,去除繁杂的元素,尊从“减”与“简”的态度。空间的建构逻辑,充分展现设计者对空间本质的独特认知。 艺术是城市的思想,当代艺术的形态从某种意义上是城市的精神财富。用艺术的维度,传达身份特征与文化价值观,以另外一个视角提供补充与解决方案。 区别于以往的售楼处,我们在一层设置独特的艺术书吧和艺术旋转楼梯,赋予空间更多的可能性,形成空间独特的记忆点。 知识是探索未来的桥梁,书籍在这里安静地陪伴,无论是大人还是小孩,都能在这里静享智慧的愉悦。 旋转而上的艺术悬浮楼梯,在极简的建筑语汇、错落有致的形制、LED灯带光效的映衬下,形成雕塑般的艺术性。光影在此间流溢、沉浸,于简约中展现丰富的层序美与诗性,营造出清通灵透之象。 二层沙盘造型如一个魔盒,艺术装置在灯光的折射下熠熠生辉,其随观者视线流转而变换的丰富色彩,进一步提升空灵意境,艺术质感的格调跃然而出。 观者在空间中游走,略带神秘,在错落中共寻心灵深处的永恒。洽谈区顶部延续大堂和沙盘区的手法,体块的错落布置和空间穿透,注重材料与空间的逻辑关系、内外一体及材料自身的表现力。 洽谈区与大堂的空间互通,增添了趣味性,利用视错原理,使人仿佛置身绚烂的艺术世界。 城市艺术馆的每一处细节的展现,内容并不厚重,却无不体现精巧、时尚的简约之美。设计师在艺术中探求文化渊源,让艺术更生活、更现代、更上品,极大地提升了整个空间的质感。这里是别于喧嚣都市的一处安静之地,在这里,时间与人的步伐也随之变得缓和,探向精神丰富的深处。 △ 一层平面图 △二层平面图
从当地文化记忆中提取元素特征,借以光影艺术与体块穿插的设计手法,用空间的纯粹性反衬精神的充沛,用极少主义的节制冷静来实现一个柔和中富有张力的空间。
























金盘网APP
金盘网公众号
金盘网小程序




