苏州绿都苏和雅集
苏和雅集位于苏州市姑苏区,距离苏州市政府2.0公里,距离苏州火车站5.8公里。紧邻寒山寺和京杭大运河,东临西环路,周边配套设施齐全。项目占地41545平方,总建筑面积89008平米,容积率1.1,叠墅产品共计321套。
- 项目名称:苏州绿都苏和雅集
- 项目地点:江苏省 苏州市苏州市
- 开发商:绿都地产
- 销售参考价:¥50000/㎡
- 项目类型:别墅
- 形态:大区
- 市场定位:改善系
- 建成时间:2021年
- 风格:现代
- 主力户型:叠拼 144-180㎡ 4室 2厅 2卫
- 占地面积:41545㎡
- 建筑面积: 45700㎡
- 容积率:1.1
- 装修类别:精装修
- 发布日期:2022-08-07
- 最近更新:2022-09-20 20:07
苏和雅集位于苏州市姑苏区,距离苏州市政府2.0公里,距离苏州火车站5.8公里。紧邻寒山寺和京杭大运河,东临西环路,周边配套设施齐全。项目占地41545平方,总建筑面积89008平米,容积率1.1,叠墅产品共计321套。

△ 区位分析图

△ 小区主出入口实景图

△ 小区人行出入口实景图


△ 建筑立面实景图
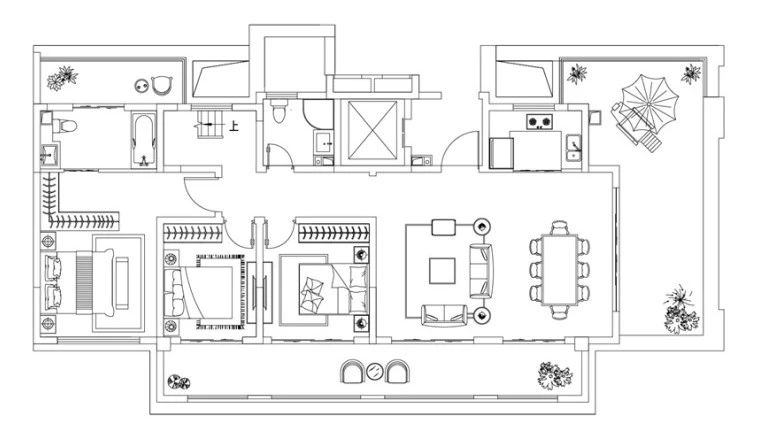
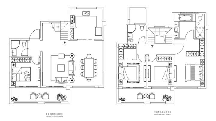
苏和雅集项目共计321套叠墅产品。其中,4F产品上叠、下叠共计18套,面积约400平米。6F产品分上叠、中叠、下叠三种主力户型,下叠户型面积约260-290平米,中叠户型面积约160平米,上叠户型面积约144平米。目标客群为苏州市场品质改善或功能改善群体,属于享受型自住群体。 △ 290㎡下叠户型 △ 160㎡中叠户型 △ 140㎡上叠户型 苏和雅集示范区样板房聘请新锐设计团队定制室内设计,采用与建筑、景观相匹配的高品质设计定位,营造空间的舒适性,追求匠心精工,不盲目堆砌材料及配置。设计风格是国际新中式,以现代技法演绎中国传统文化精髓。 △ 下叠样板房餐厅实景图 △ 下叠样板房客厅实景图 沿袭中国古代建筑的周礼思想,制礼割宅,形成“内外有秩,出入有序”的布局观,打造“门——庭——巷——院”的归家仪式感。项目师承中式园林,意蕴江南别院,打造“一脉主轴,三进院落”,邻里有序的园林院子,景观层层递进,一坊一巷之中,营造出一种东方意蕴的迂回转乘。 △ 示范区景观实景图 △ 南入口景观组团实景图 △ 中央景观组团实景图 △ 宅间绿化实景图 △ 大区宅间坊墙实景图














金盘网APP
金盘网公众号
金盘网小程序



